Authentic Homes
Mountain No.2
Mountain No.2
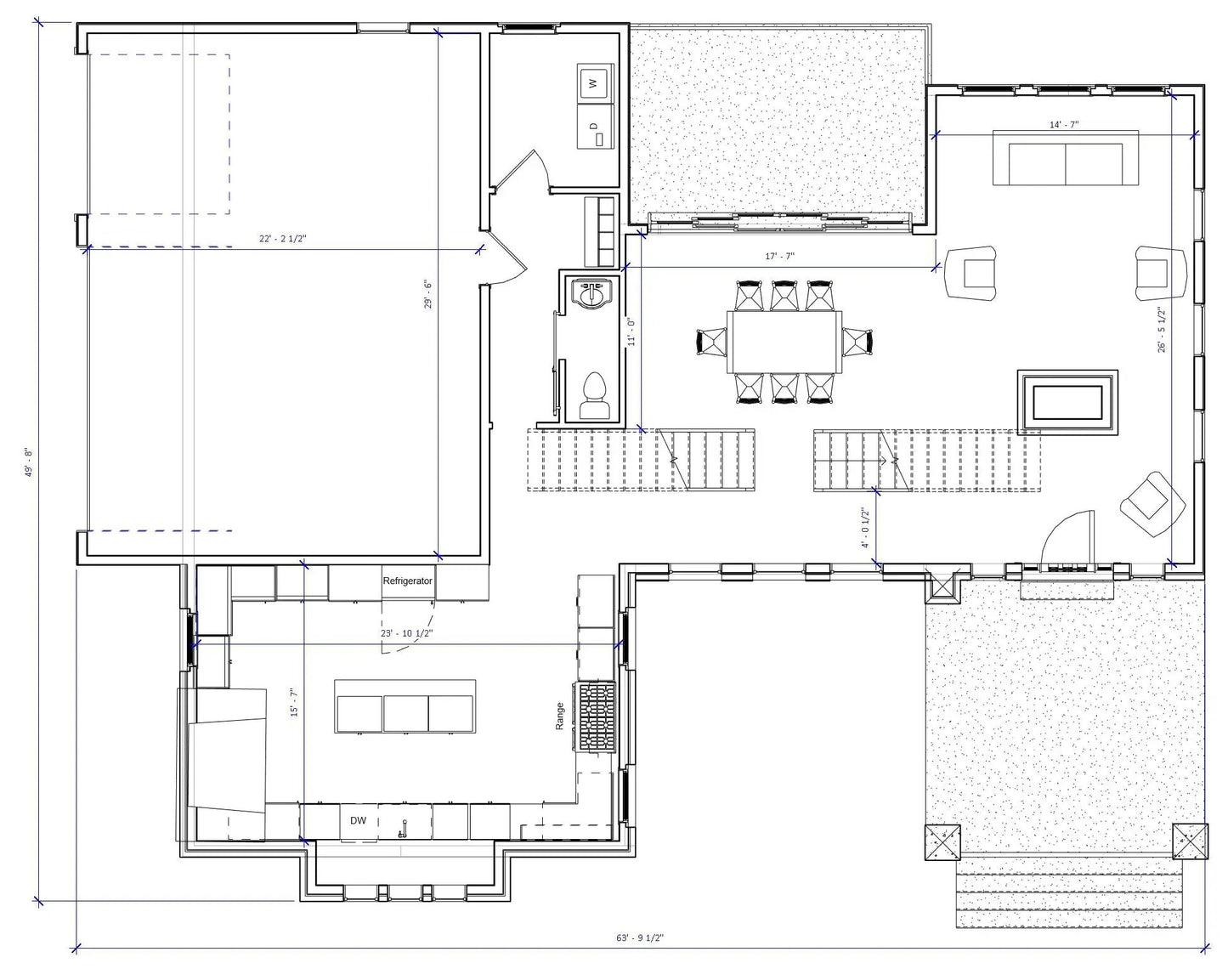
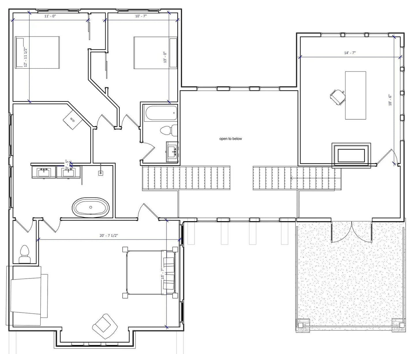
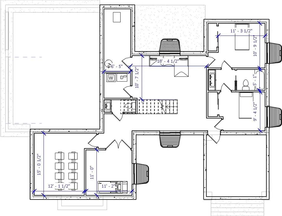
Mountain house plan
SQ FT: 4715, 684 garage
WIDTH: 64
DEPTH: 50
BEDROOMS: 5
BATHROOMS: 4
FEATURES:
- Dramatic mirrored staircases
- Two story vaulted light filled dining room
- Spacious light filled kitchen with a fireplace
- Private office/bonus room w/large deck
- Large light filled owner's suite w/fireplace
- Theater
- Exercise room
- Large unheated storage room
- Mountain house plan with black stucco and wood siding

I am the sole designer/drafter of my company Authentic Homes which guarantees you personalized attention if you have questions or need modifications to this Mountain house plan. Purchased plans are sent as a PDF file by email.
Please email me at AuthenticPlans@gmail.com for a Stock Plan Contract before purchasing, thank you.
PLANS INCLUDE:
|
PLANS DO NOT INCLUDE:
|
See demo set of house plans, plans are not returnable for a refund once the PDF of plans has been emailed as the product has been delivered. However, Authentic Homes will make every effort to resolve concerns. ALL PLANS ARE PROTECTED BY COPYRIGHT LAWS.
Regular price
$2,700.00 USD
Regular price
Sale price
$2,700.00 USD
Unit price
per
Couldn't load pickup availability




