Authentic Homes
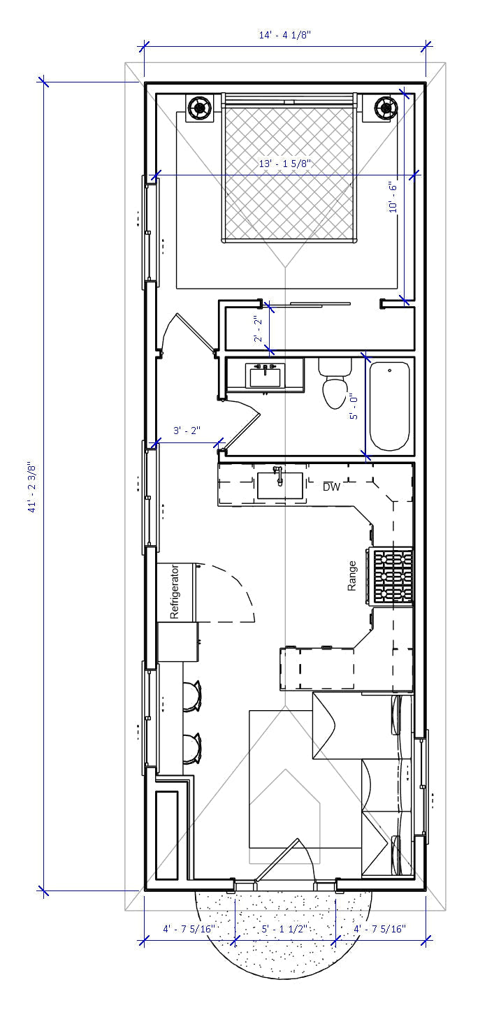
No.37 French ADU house plan Arched Dormer
No.37 French ADU house plan Arched Dormer
French ADU house plan
SQ FT: 591
WIDTH: 14' 4"
DEPTH: 41' 3"
BEDROOMS: 1
BATHROOMS: 1
FEATURES::
- Light filled room in this ADU house plan with arched dormer
- Full kitchen with bar seating
- Fireplace
I am the sole designer/drafter of my Utah company Authentic Homes which guarantees you personalized attention if you have questions or need modifications for this ADU house plan. Purchased plans are sent as a PDF file by email.
Please email me at AuthenticPlans@gmail.com for a Stock Plan Contract before purchasing, thank you.
|
PLANS INCLUDE:
|
PLANS DO NOT INCLUDE:
|
See demo set of house plans, plans are not returnable for a refund once the PDF of plans has been emailed as the product has been delivered. However, Authentic Homes will make every effort to resolve concerns. ALL PLANS ARE PROTECTED BY COPYRIGHT LAWS.
Regular price
$600.00 USD
Regular price
Sale price
$600.00 USD
Unit price
per
Shipping calculated at checkout.
Couldn't load pickup availability
