Authentic Homes
Shingle No.3
Shingle No.3
Shingle house plan
SQ FT: 3902, 487 garage
WIDTH: 33
DEPTH: 69
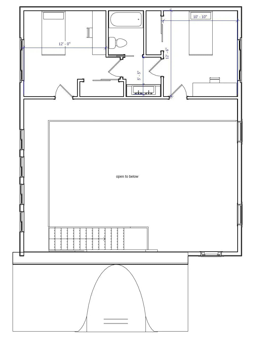
BEDROOMS: 5
BATHROOMS:3.5
FEATURES:
- Staircase feature
- Two story vaulted living room & dining room
- Light filled kitchen w/Butler's Pantry
- Office
- Main floor owner's suite
- Large basement entertaining area
- Theater
- Shared bathrooms have separate tub area
- Exterior with loads of charm suitable for a shingle house plan
I am the sole designer/drafter of my company Authentic Homes which guarantees you personalized attention if you have questions or need modifications to this Shingle house plan. Purchased plans are sent as a PDF file by email.
Please email me at AuthenticPlans@gmail.com for a Stock Plan Contract before purchasing, thank you.
|
PLANS INCLUDE:
|
PLANS DO NOT INCLUDE:
|
See demo set of house plans, plans are not returnable for a refund once the PDF of plans has been emailed as the product has been delivered. However, Authentic Homes will make every effort to resolve concerns. ALL PLANS ARE PROTECTED BY COPYRIGHT LAWS.
Regular price
$2,195.00 USD
Regular price
Sale price
$2,195.00 USD
Unit price
per
Couldn't load pickup availability
