Authentic Homes
No.12 Cottage house plan Salem, Utah
No.12 Cottage house plan Salem, Utah
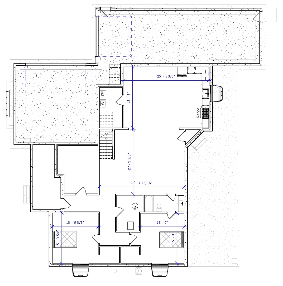
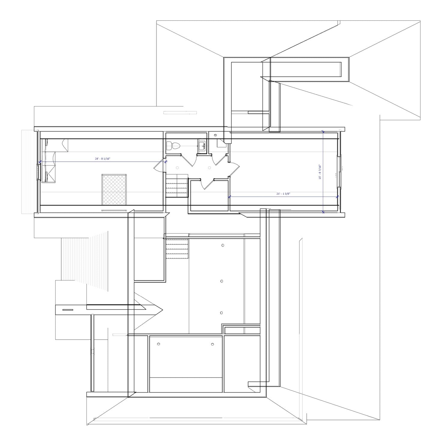
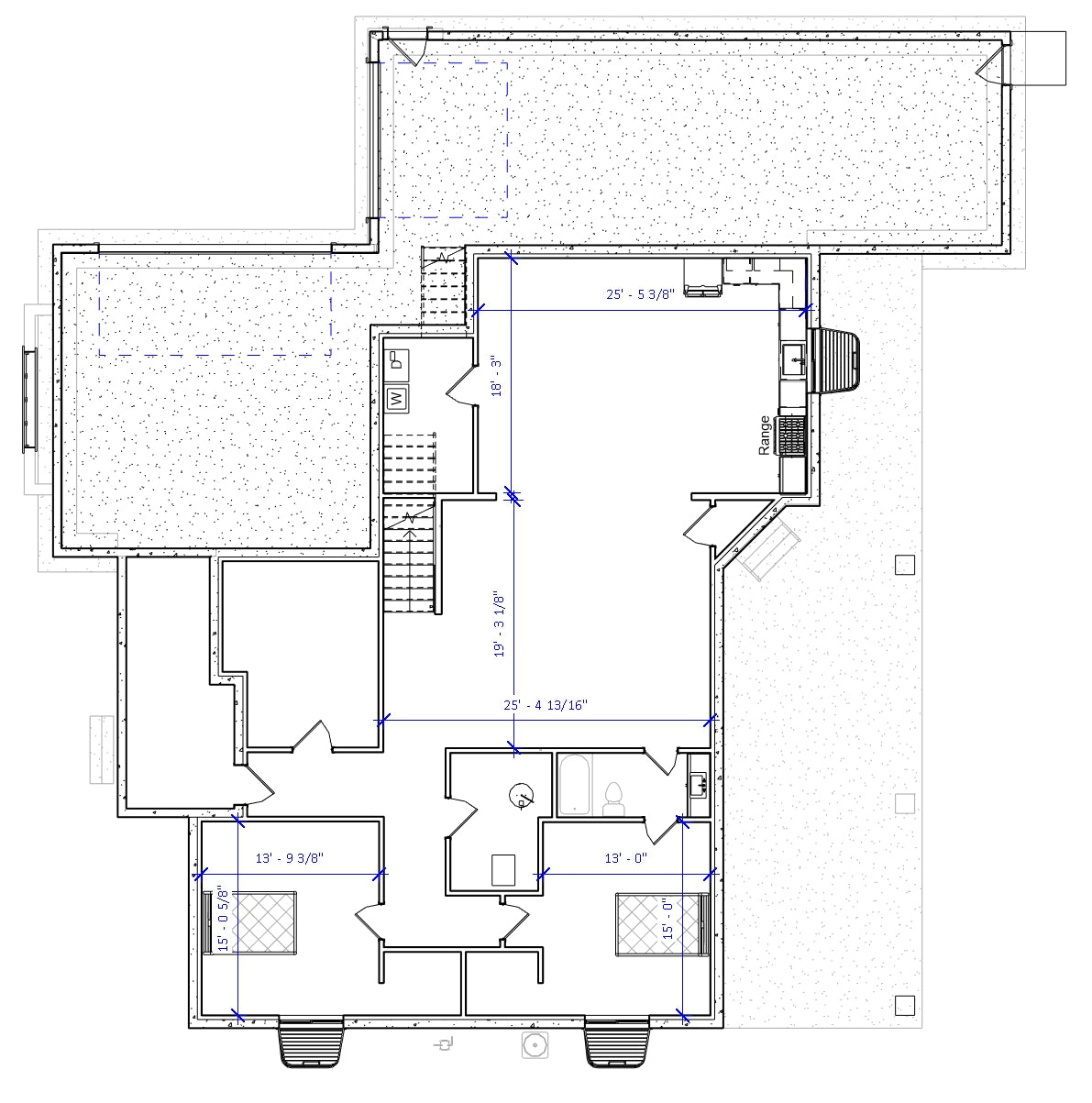
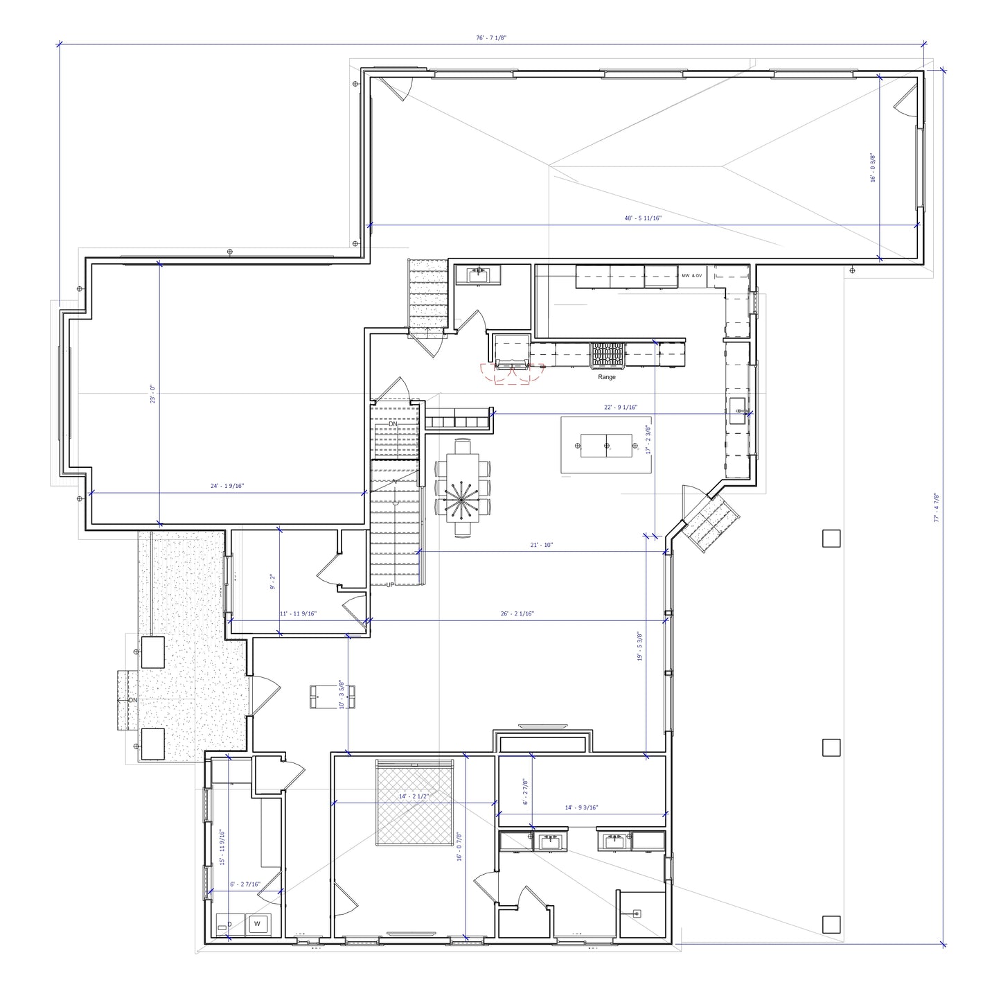
Cottage house plan built in Salem, Utah County UT.
SQ FT: 5585, garage 1506 (3rd car is RV)
WIDTH: 77
DEPTH: 76
BEDROOMS: 4
BATHROOMS: 3
FEATURES::
- Living room w/cathedral ceiling in this Cottage house plan
- Large kitchen/island
- Butler's pantry
- Main floor Owner's Suite
- Laundry/craft room
- Large 2nd floor bonus space
- Spacious family room in basement
I am the sole designer/drafter of my Utah company Authentic Homes which guarantees you personalized attention if you have questions or need modifications for this Cottage house plan. Purchased plans are sent as a PDF file by email.
Please email me at AuthenticPlans@gmail.com for a Stock Plan Contract before purchasing, thank you.
|
PLANS INCLUDE:
|
PLANS DO NOT INCLUDE:
|
See demo set of house plans, plans are not returnable for a refund once the PDF of plans has been emailed as the product has been delivered. However, Authentic Homes will make every effort to resolve concerns. ALL PLANS ARE PROTECTED BY COPYRIGHT LAWS.
Regular price
$3,545.50 USD
Regular price
Sale price
$3,545.50 USD
Unit price
per
Shipping calculated at checkout.
Couldn't load pickup availability
