Authentic Homes
No.10 Craftsman house plan Dormer & Timbers
No.10 Craftsman house plan Dormer & Timbers
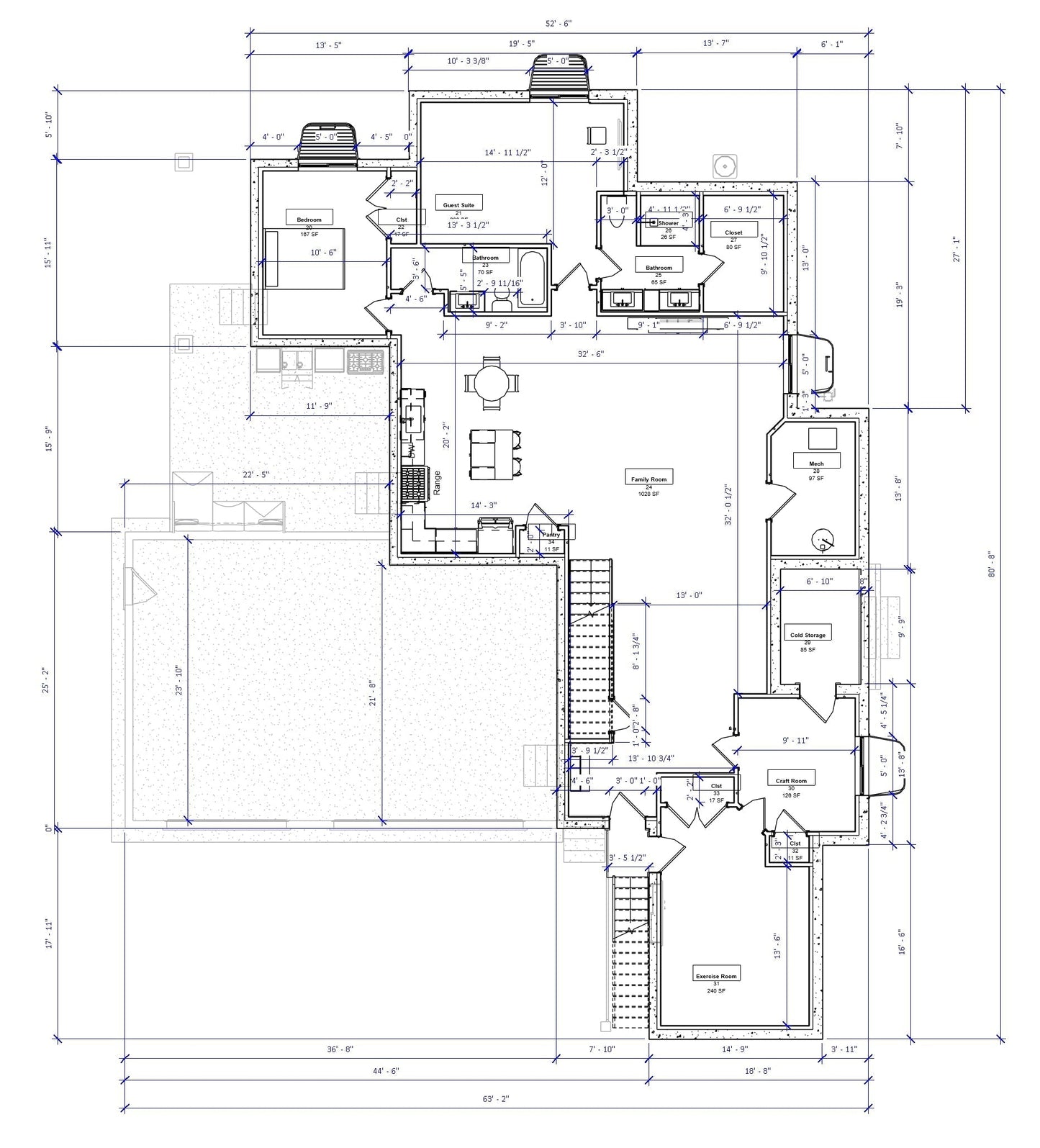
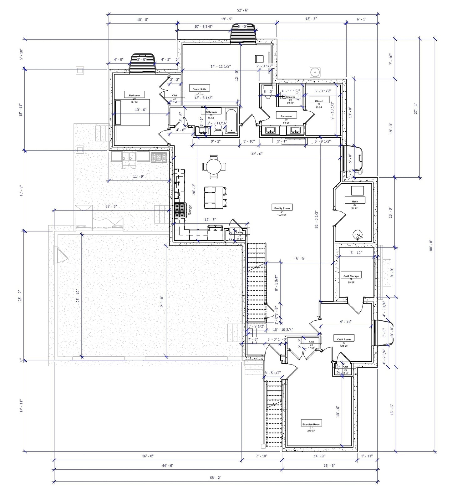
Craftsman stock house plan
SQ FT: 5066, 896 garage
WIDTH: 80' 6"
DEPTH: 63' 2"
BEDROOMS: 5
BATHROOMS: 4.5
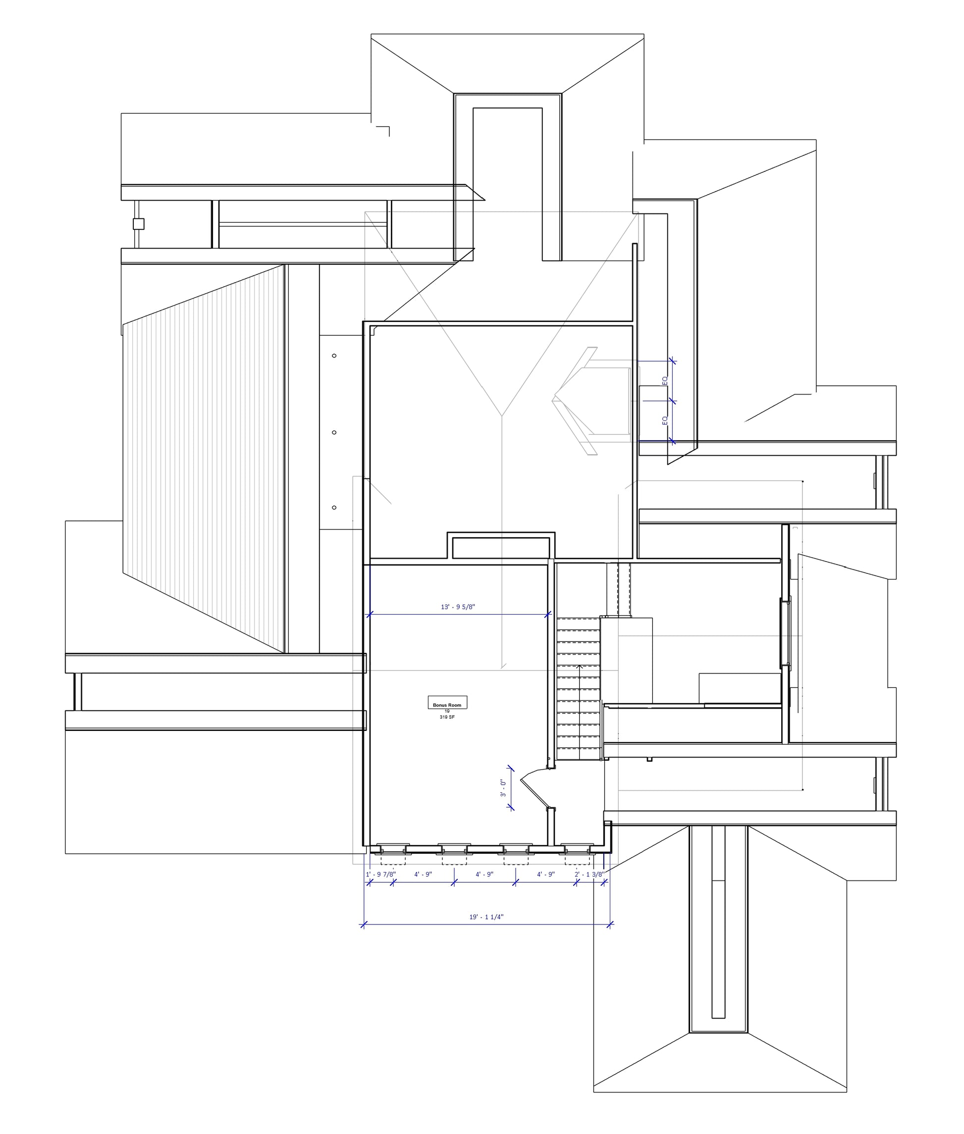
FEATURES::
- Two story vault and dormer in family room
- Main floor owner's suite
- Craft room
- Exercise room
- Staircase feature
- Large basement family room
- Craftsman house plan with character
I am the sole designer/drafter of my company Authentic Homes in Utah which guarantees you personalized attention if you have questions or need modifications to this Craftsman house plan. Purchased plans are sent as a PDF file by email.
Please email me at AuthenticPlans@gmail.com for a Stock Plan Contract before purchasing, thank you.
|
PLANS INCLUDE:
|
PLANS DO NOT INCLUDE:
|
See demo set of house plans, plans are not returnable for a refund once the PDF of plans has been emailed as the product has been delivered. However, Authentic Homes will make every effort to resolve concerns. ALL PLANS ARE PROTECTED BY COPYRIGHT LAWS.
Regular price
$2,981.00 USD
Regular price
Sale price
$2,981.00 USD
Unit price
per
Shipping calculated at checkout.
Couldn't load pickup availability
