Authentic Homes
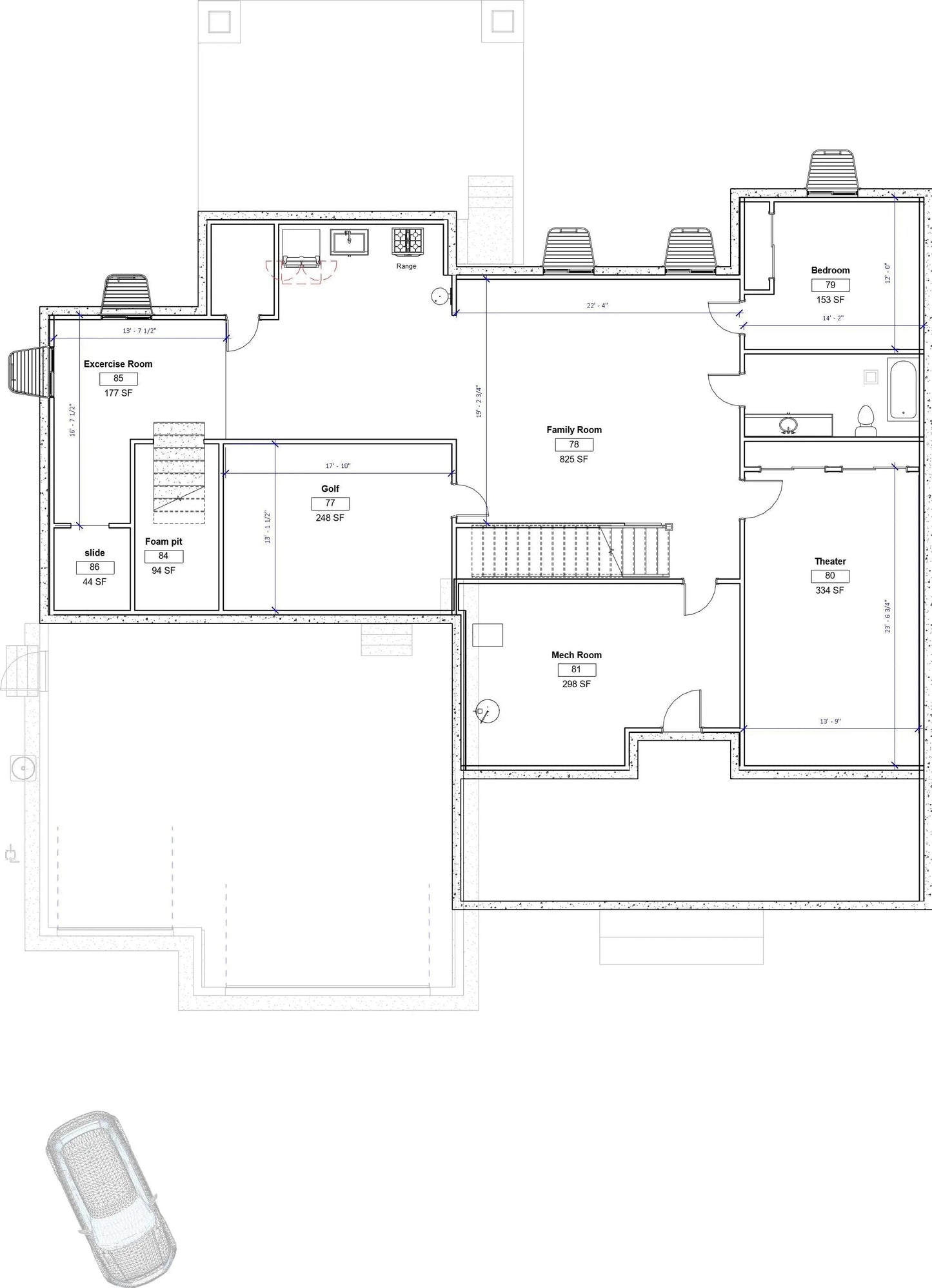
No.5 Craftsman house plan Golf Room
No.5 Craftsman house plan Golf Room
Craftsman house plan
SQ FT: 6722, 952 garage
WIDTH: 70
DEPTH: 62
BEDROOMS: 6
BATHROOMS: 4.5
FEATURES::
- Kid's foam pit & slide
- Theater
- Golf room
- Exercise room
- Large basement family room
- Office
- Craft room
- Formal living room adds impact in this Craftsman house plan
- Two story vault in family room
I am the sole designer/drafter of my Utah company Authentic Homes which guarantees you personalized attention if you have questions or need modifications to this Craftsman house plan. Purchased plans are sent as a PDF file by email.
Please email me at AuthenticPlans@gmail.com for a Stock Plan Contract before purchasing, thank you.
|
PLANS INCLUDE:
|
PLANS DO NOT INCLUDE:
|
See demo set of house plans, plans are not returnable for a refund once the PDF of plans has been emailed as the product has been delivered. However, Authentic Homes will make every effort to resolve concerns. ALL PLANS ARE PROTECTED BY COPYRIGHT LAWS.
Regular price
$3,837.00 USD
Regular price
Sale price
$3,837.00 USD
Unit price
per
Shipping calculated at checkout.
Couldn't load pickup availability
