Authentic Homes
Craftsman No.9
Craftsman No.9
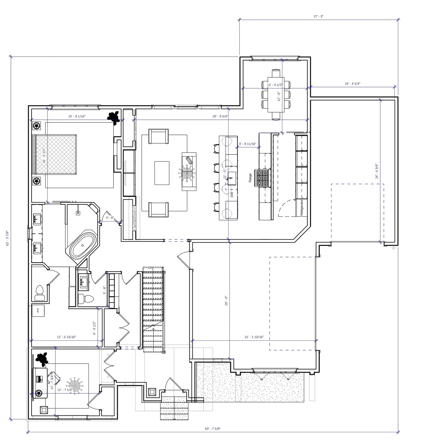
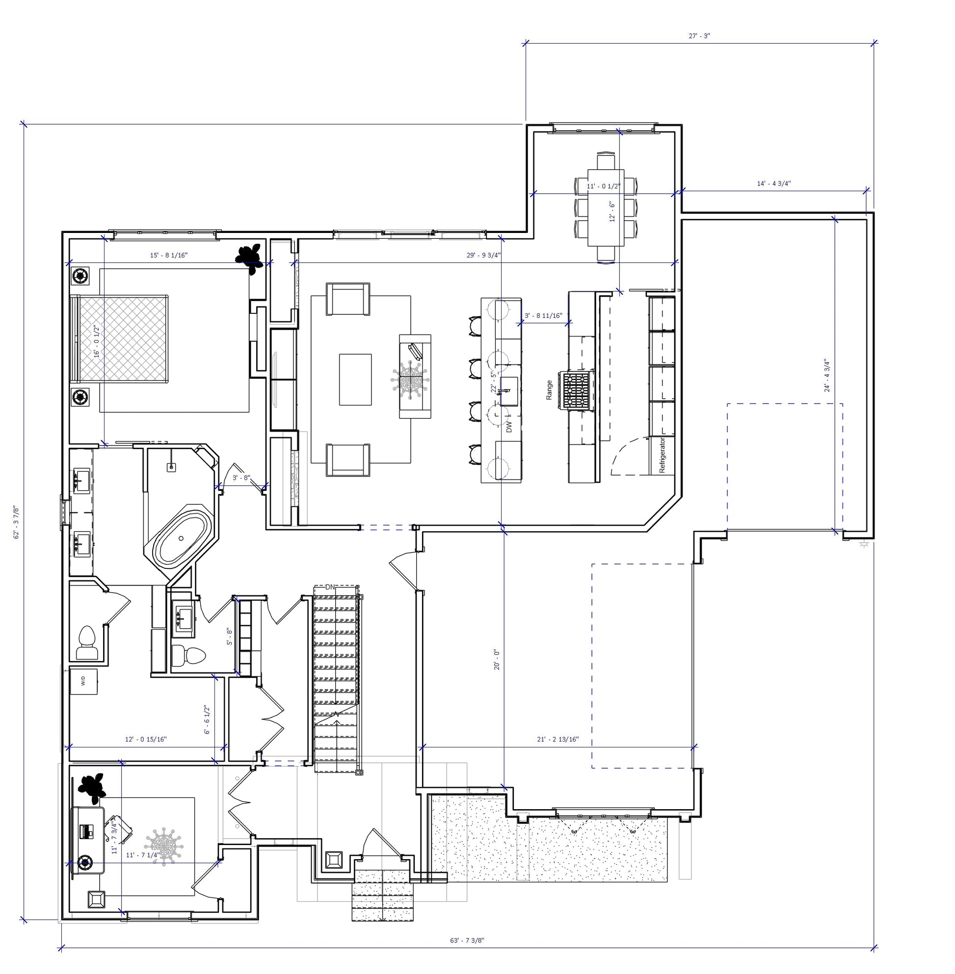
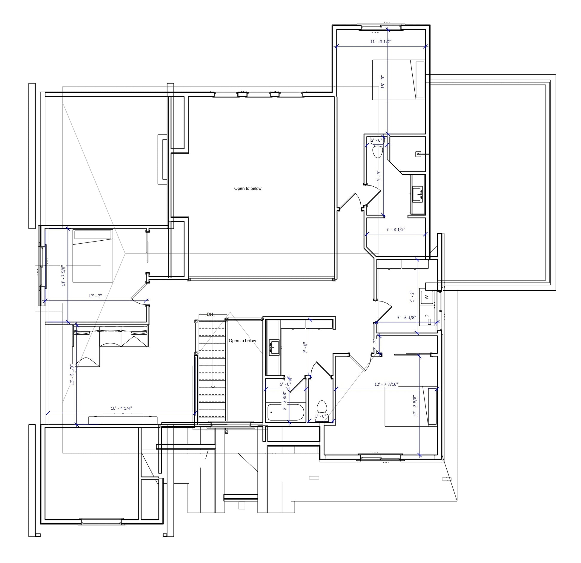
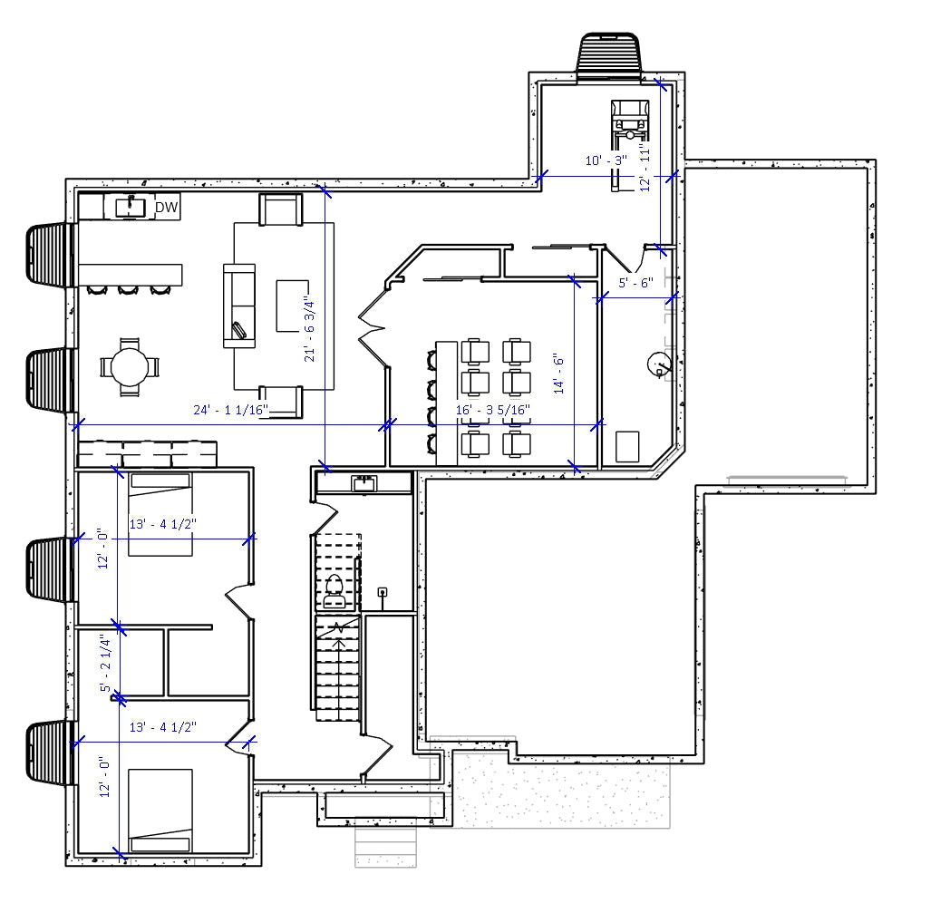
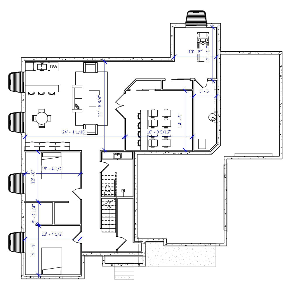
Craftsman house plan
SQ FT: 5568, 907 garage
WIDTH: 64
DEPTH: 62
BEDROOMS: 6
BEATHROOMS: 4.5
FEATURES:
- Craftsman house plan with vaulted offfice featuring arched window
- Striking kitchen with large island and Butler's Pantry
- Fireplaces in living room and owner's suite
- Vaulted living room, office, and owner's suite
- Main floor owner's suite
- Large double access mudroom
- Theater and large family room in basement
- Exercise room
- Large third bay garage that can be sized for any RV
I am the sole designer/drafter of my company Authentic Homes which guarantees you personalized attention if you have questions or need modifications to this Craftsman house plan. Purchased plans are sent as a PDF file by email.
Please email me at AuthenticPlans@gmail.com for a Stock Plan Contract before purchasing, thank you.
PLANS INCLUDE:
|
PLANS DO NOT INCLUDE:
|
See demo set of house plans, plans are not returnable for a refund once the PDF of plans has been emailed as the product has been delivered. However, Authentic Homes will make every effort to resolve concerns. ALL PLANS ARE PROTECTED BY COPYRIGHT LAWS.
Regular price
$3,238.00 USD
Regular price
Sale price
$3,238.00 USD
Unit price
per
Couldn't load pickup availability








