Authentic Homes
No.12 European house plan Omniblock
No.12 European house plan Omniblock
European house plan
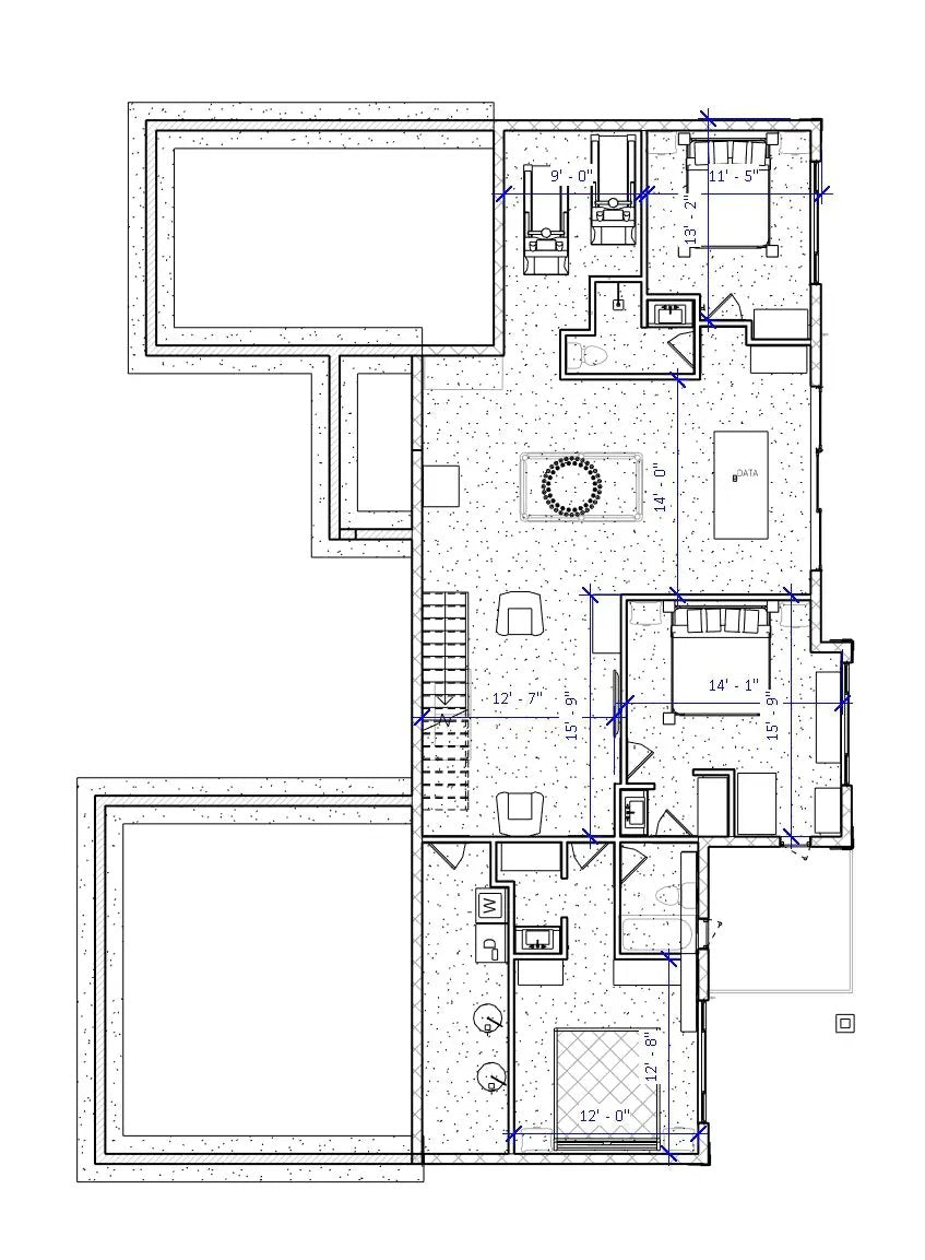
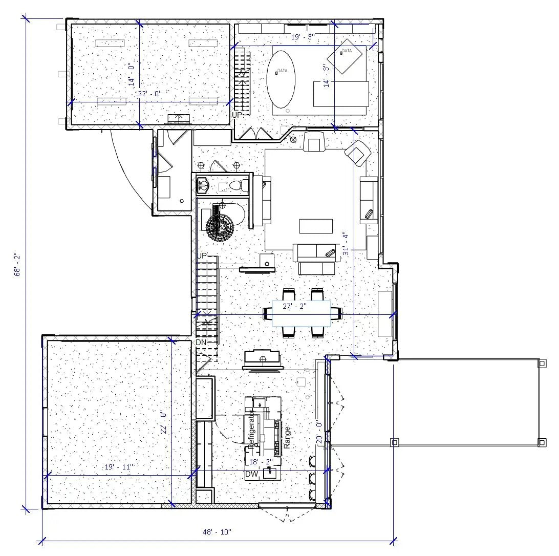
SQ FT: 4183, 870 garage
Sized for Omniblock. Designed for radiant heat and polished concrete floors.
WIDTH: 68
DEPTH: 49
BEDROOMS: 4
BATHROOMS: 3.5
FEATURES:
- Dramatic staircase
- Two story vaulted great room
- Two story libray/loft/office
- European house plan with modern elements
I am the sole designer/drafter of my Utah company Authentic Homes which guarantees you personalized attention if you have questions or need modifications to this European house plan. Purchased plans are sent as a PDF file by email.
Please email me at AuthenticPlans@gmail.com for a Stock Plan Contract before purchasing, thank you.
|
PLANS INCLUDE:
|
PLANS DO NOT INCLUDE:
|
See demo set of house plans, plans are not returnable for a refund once the PDF of plans has been emailed as the product has been delivered. However, Authentic Homes will make every effort to resolve concerns. ALL PLANS ARE PROTECTED BY COPYRIGHT LAWS.
Regular price
$2,526.50 USD
Regular price
Sale price
$2,526.50 USD
Unit price
per
Shipping calculated at checkout.
Couldn't load pickup availability
