Authentic Homes
No.22 Farmhouse plan Starter Home
No.22 Farmhouse plan Starter Home
Farmhouse plan. Perfect starter home. Home building available.
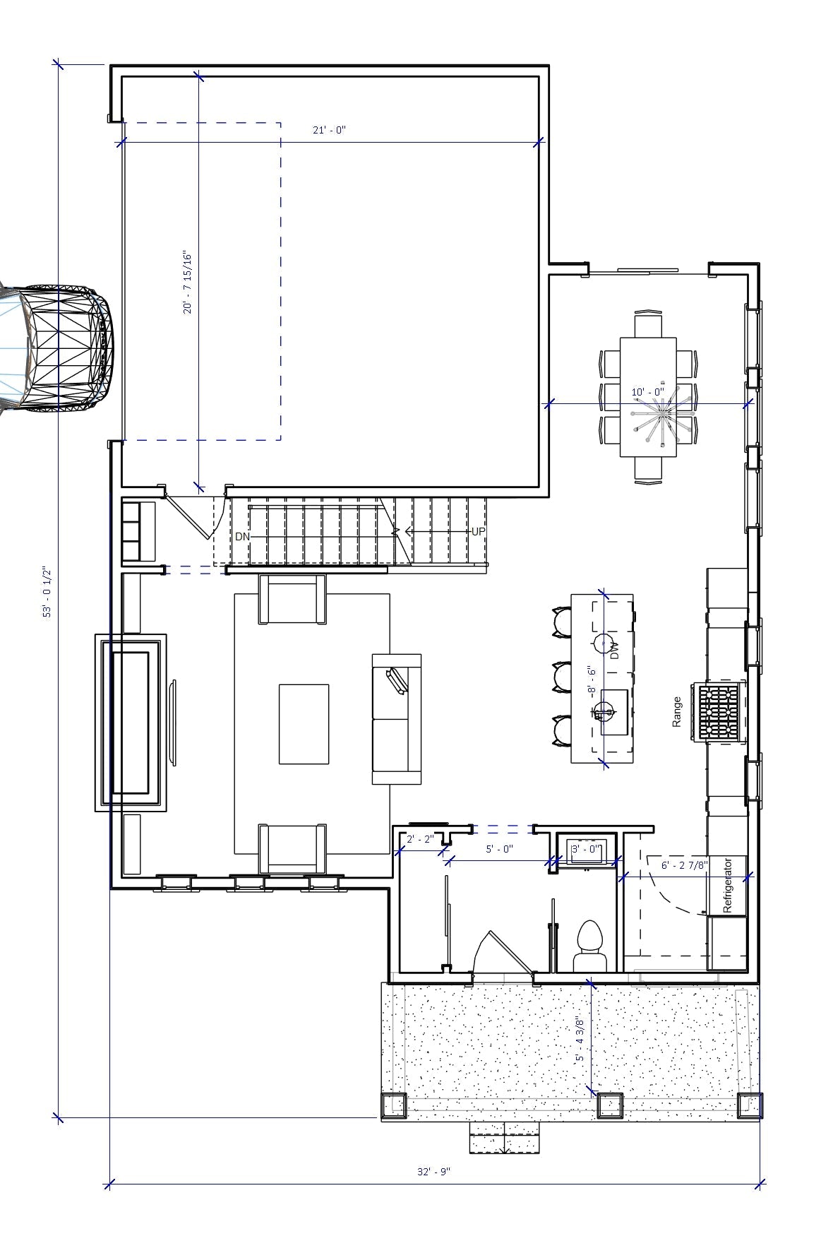
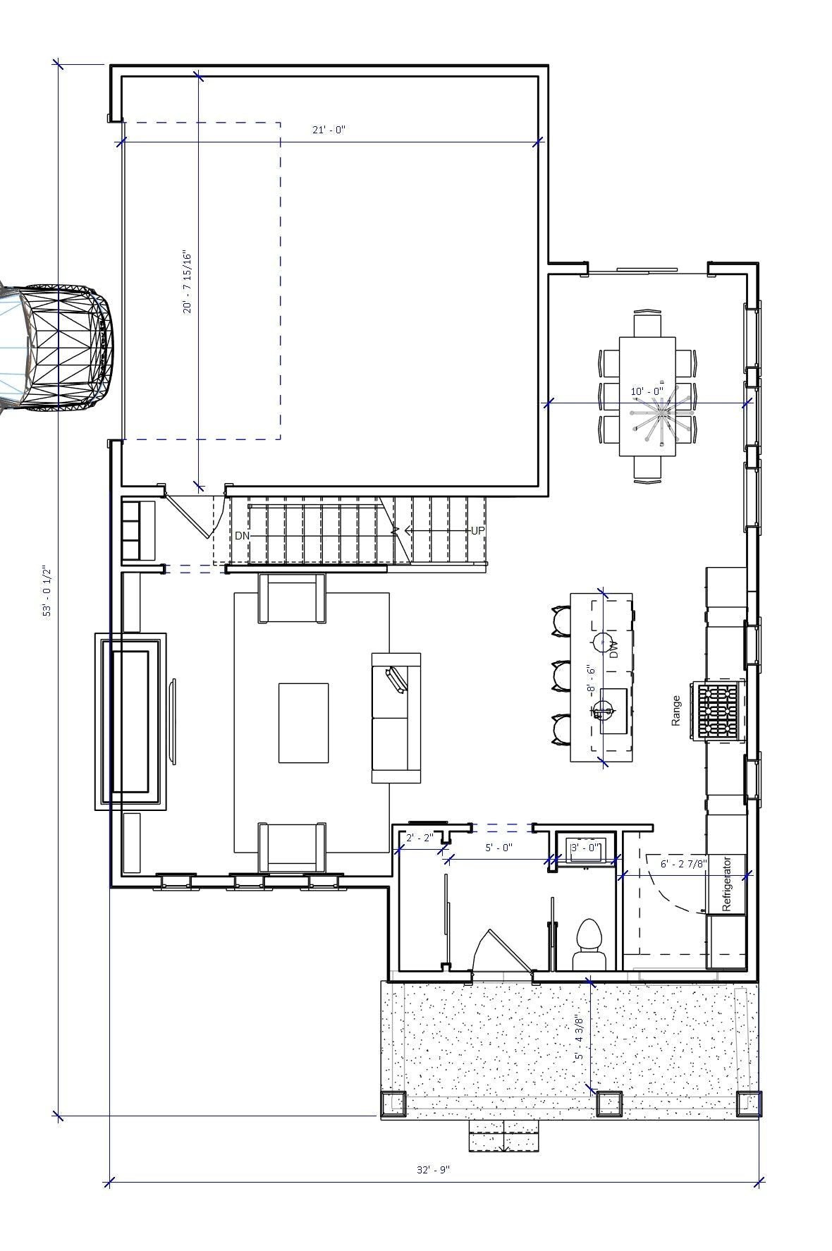
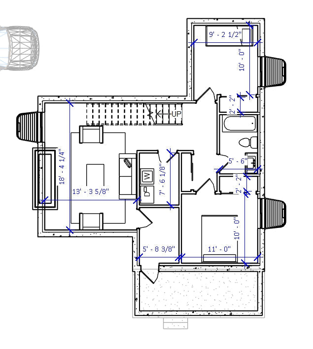
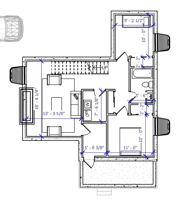
SQ FT: 2850, garage 474
WIDTH: 32'9"
DEPTH: 53'
BEDROOMS: 5
BATHROOMS: 3.5
FEATURES:
- Great room w/fireplace and vaulted dining room
- Small lot solution
- Island in kitchen
- Family room, two bedrooms and full bath in basement of this farmhouse plan.
I am the sole designer/drafter of my Utah company Authentic Homes which guarantees you personalized attention if you have questions or need modifications for this Farmhouse plan. Purchased plans are sent as a PDF file by email.
Please email me at AuthenticPlans@gmail.com for a Stock Plan Contract before purchasing, thank you.
|
PLANS INCLUDE:
|
PLANS DO NOT INCLUDE:
|
See demo set of house plans, plans are not returnable for a refund once the PDF of plans has been emailed as the product has been delivered. However, Authentic Homes will make every effort to resolve concerns. ALL PLANS ARE PROTECTED BY COPYRIGHT LAWS.
Regular price
$1,653.00 USD
Regular price
Sale price
$1,653.00 USD
Unit price
per
Shipping calculated at checkout.
Couldn't load pickup availability
