Authentic Homes
No.4 Farmhouse plan Two Story Living Room
No.4 Farmhouse plan Two Story Living Room
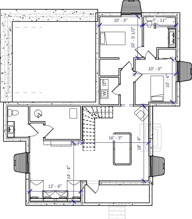
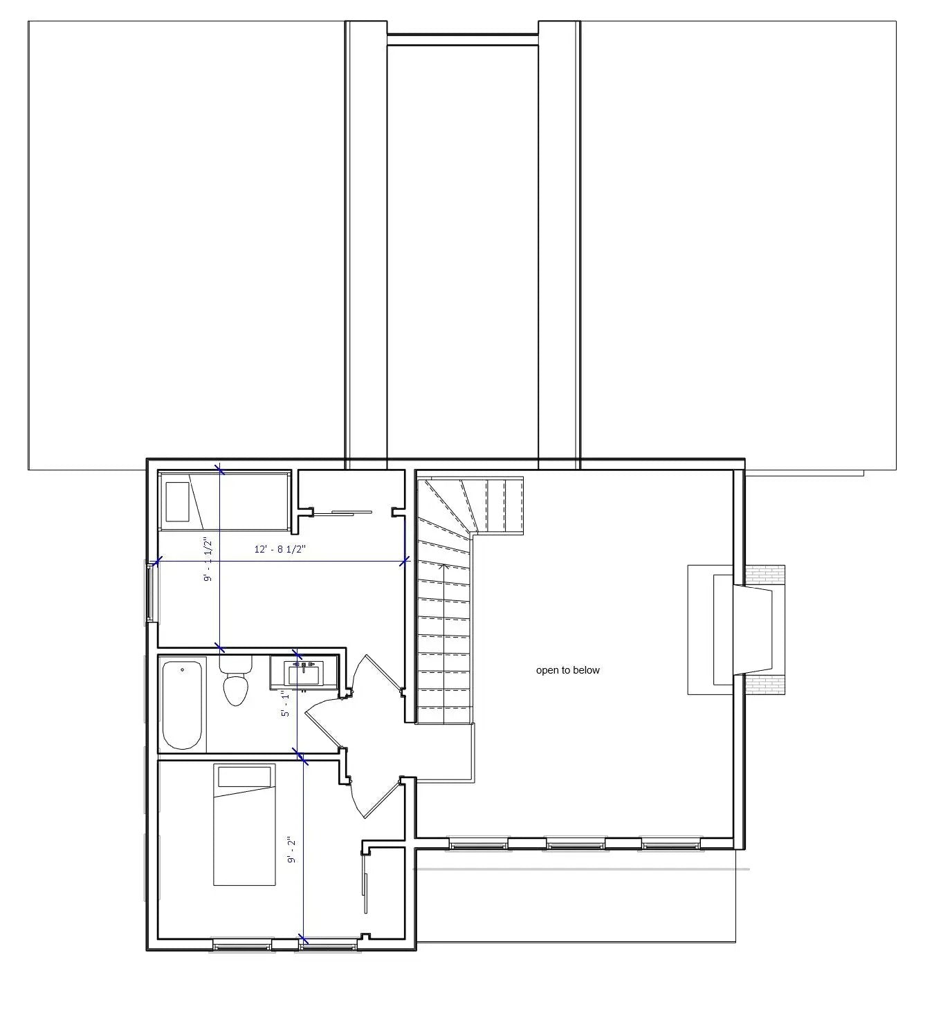
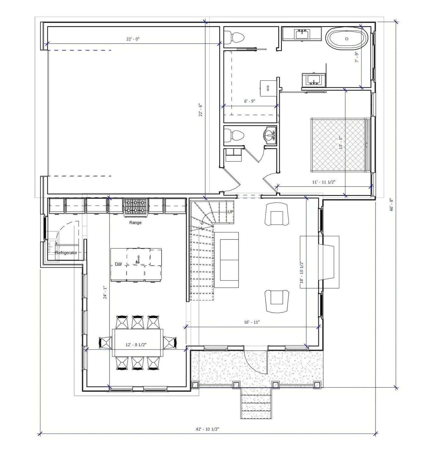
Farmhouse Plan
SQ FT: 2824, 469 garage
WIDTH: 43
DEPTH: 47
BEDROOMS: 5
BATHROOMS: 4
FEATURES:
- Two story living room w/fireplace
- Spacious family room in basement with light from both sides
- Butler's pantry
- Main floor owner's suite
- Farmhouse Plan with charm
I am the sole designer/drafter of my Utah company Authentic Homes which guarantees you personalized attention if you have questions or need modifications to this Farmhouse Plan. Purchased plans are sent as a PDF file by email.
Please email me at AuthenticPlans@gmail.com for a Stock Plan Contract before purchasing, thank you.
|
PLANS INCLUDE:
|
PLANS DO NOT INCLUDE:
|
See demo set of house plans, plans are not returnable for a refund once the PDF of plans has been emailed as the product has been delivered. However, Authentic Homes will make every effort to resolve concerns. ALL PLANS ARE PROTECTED BY COPYRIGHT LAWS.
Regular price
$1,647.00 USD
Regular price
Sale price
$1,647.00 USD
Unit price
per
Shipping calculated at checkout.
Couldn't load pickup availability

