Authentic Homes
French No.5
French No.5
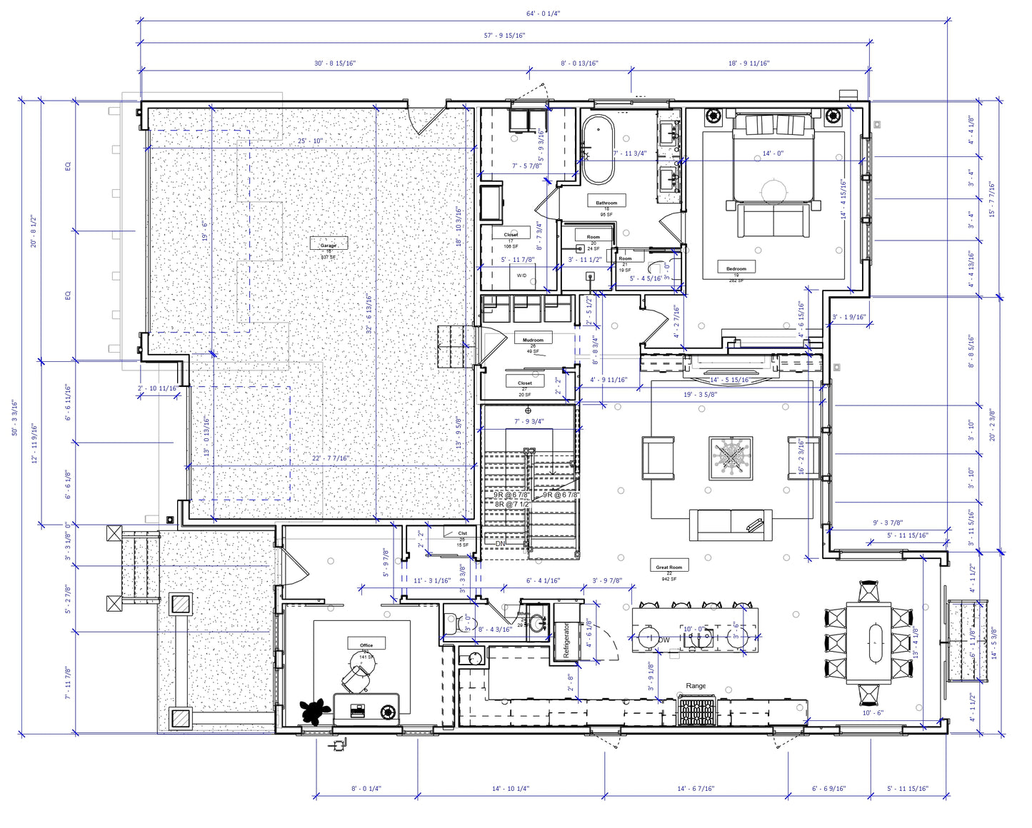
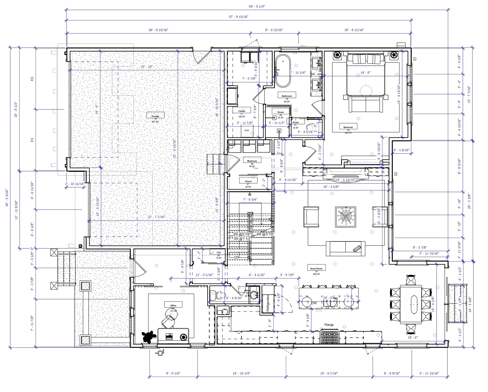
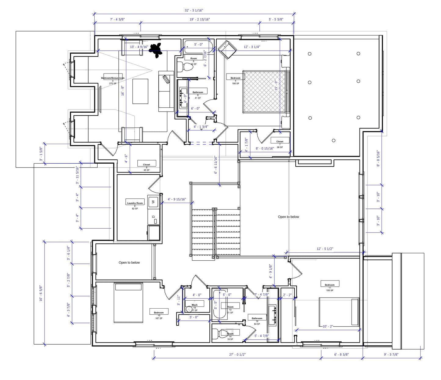
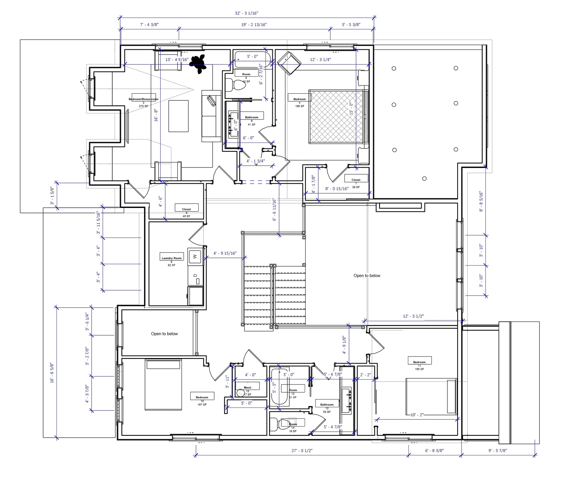
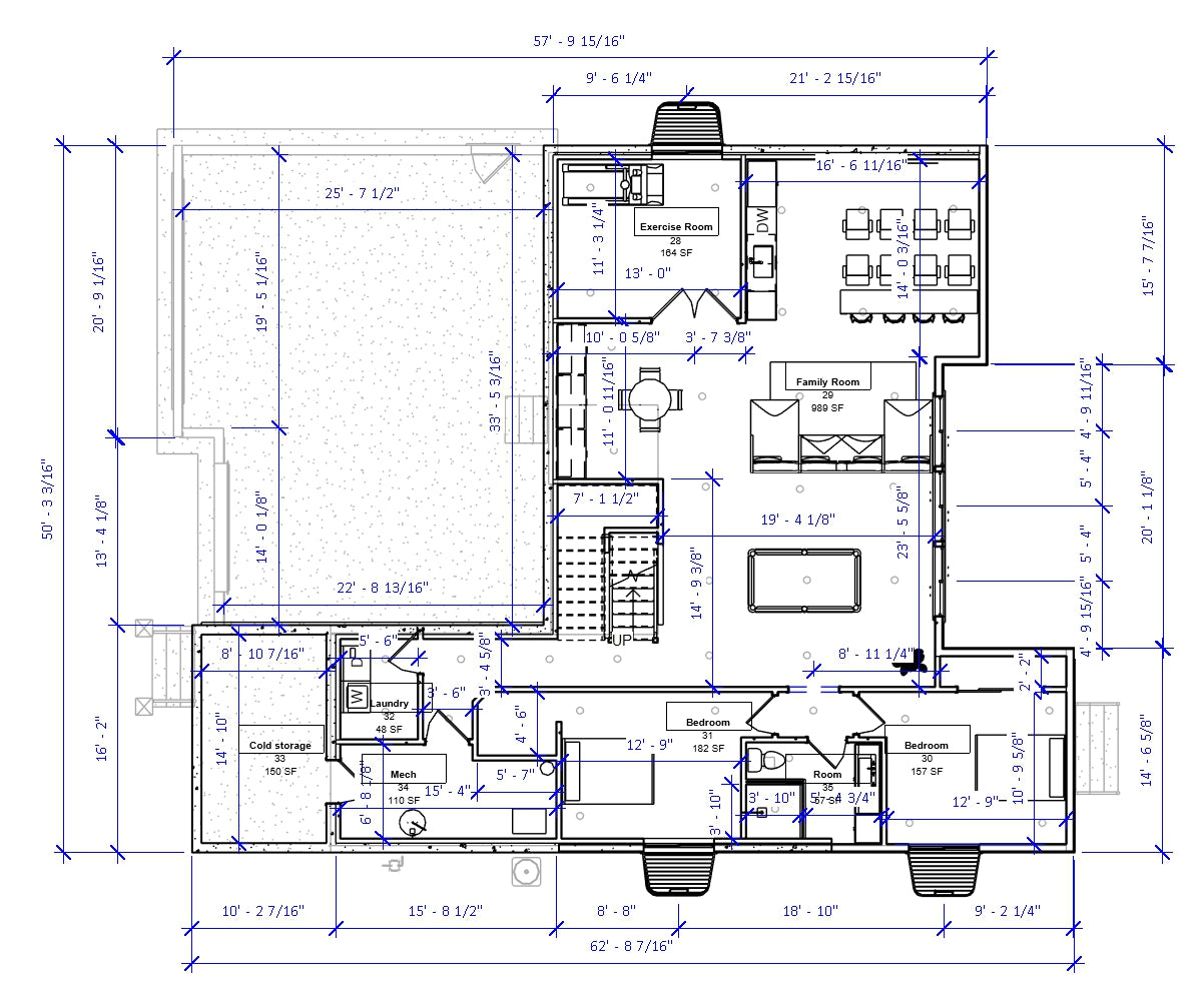
French house plan
SQ FT: 5509, 872 garage
WIDTH: 50'4"
DEPTH: 64'
BEDROOMS: 7
BEATHROOMS: 4.5
FEATURES:
- French house plan with office and vaulted entry
- Striking kitchen with large island and walk in pantry
- Fireplaces in living room and owner's suite
- Vaulted living room with dormers
- High ceiling in owner's suite and dining room
- Main floor owner's suite
- Theater and large family room in basement
- Exercise room
I am the sole designer/drafter of my company Authentic Homes which guarantees you personalized attention if you have questions or need modifications to this French house plan. Purchased plans are sent as a PDF file by email.
Please email me at AuthenticPlans@gmail.com for a Stock Plan Contract before purchasing, thank you.
PLANS INCLUDE:
|
PLANS DO NOT INCLUDE:
|
See demo set of house plans, plans are not returnable for a refund once the PDF of plans has been emailed as the product has been delivered. However, Authentic Homes will make every effort to resolve concerns. ALL PLANS ARE PROTECTED BY COPYRIGHT LAWS.
Regular price
$3,191.00 USD
Regular price
Sale price
$3,191.00 USD
Unit price
per
Couldn't load pickup availability





