Authentic Homes
No.6 French house plan Vaulted Entry
No.6 French house plan Vaulted Entry
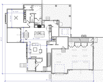
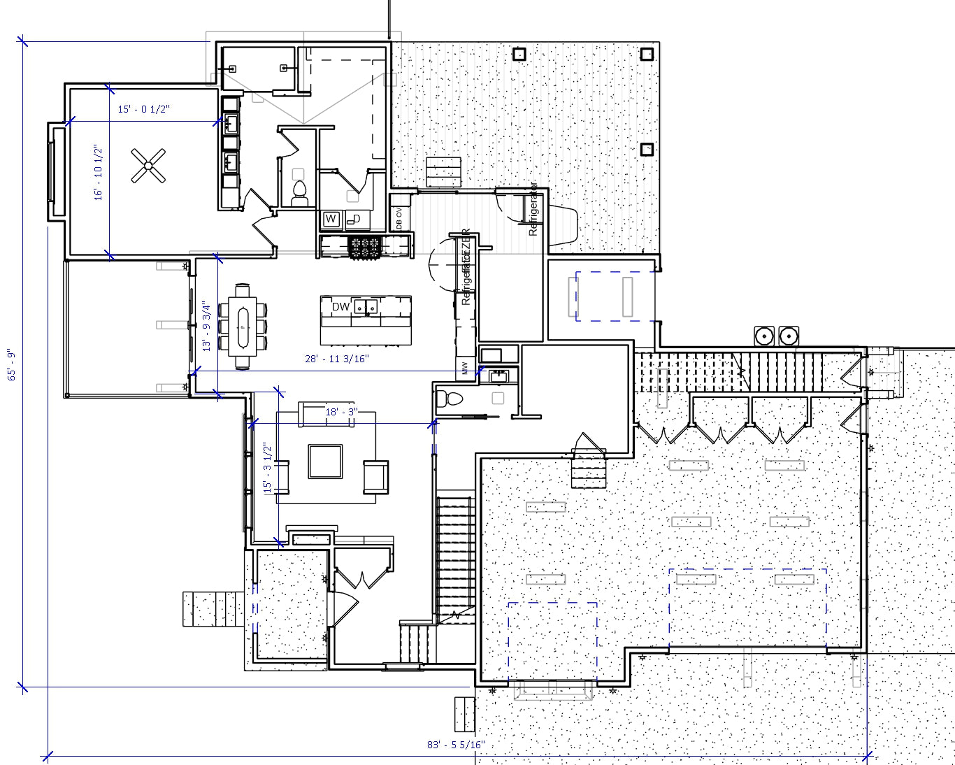
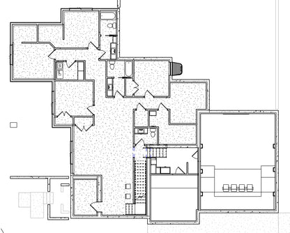
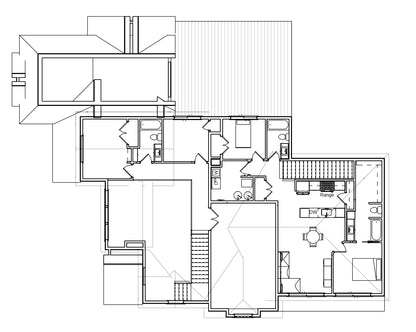
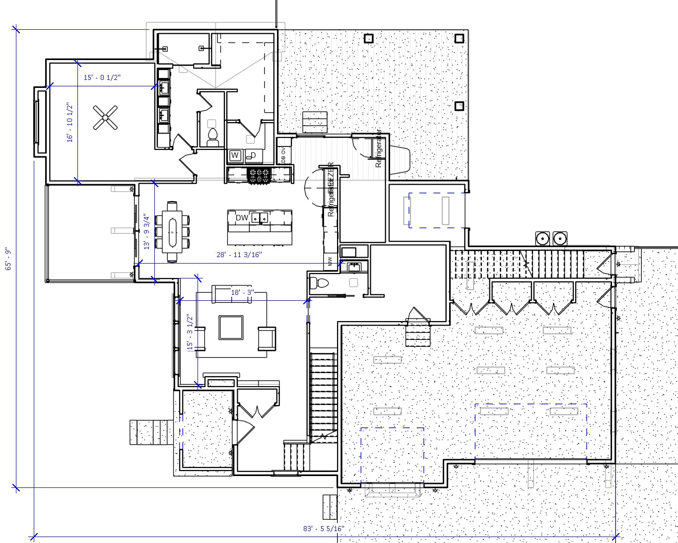
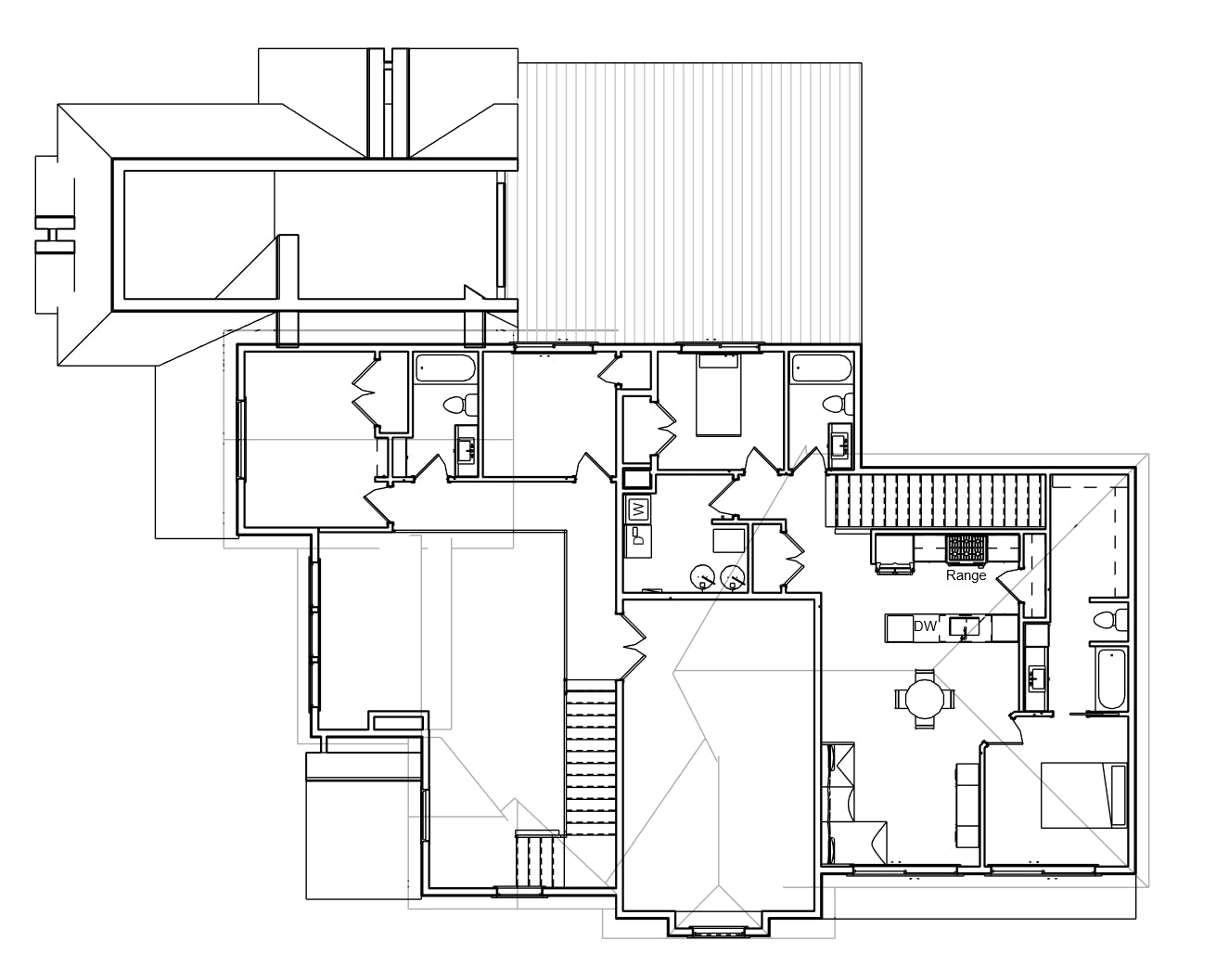
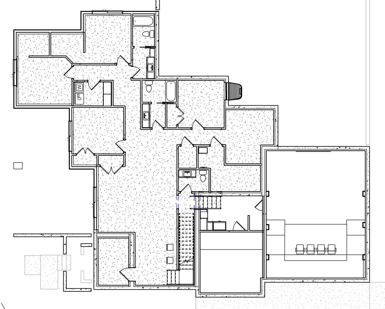
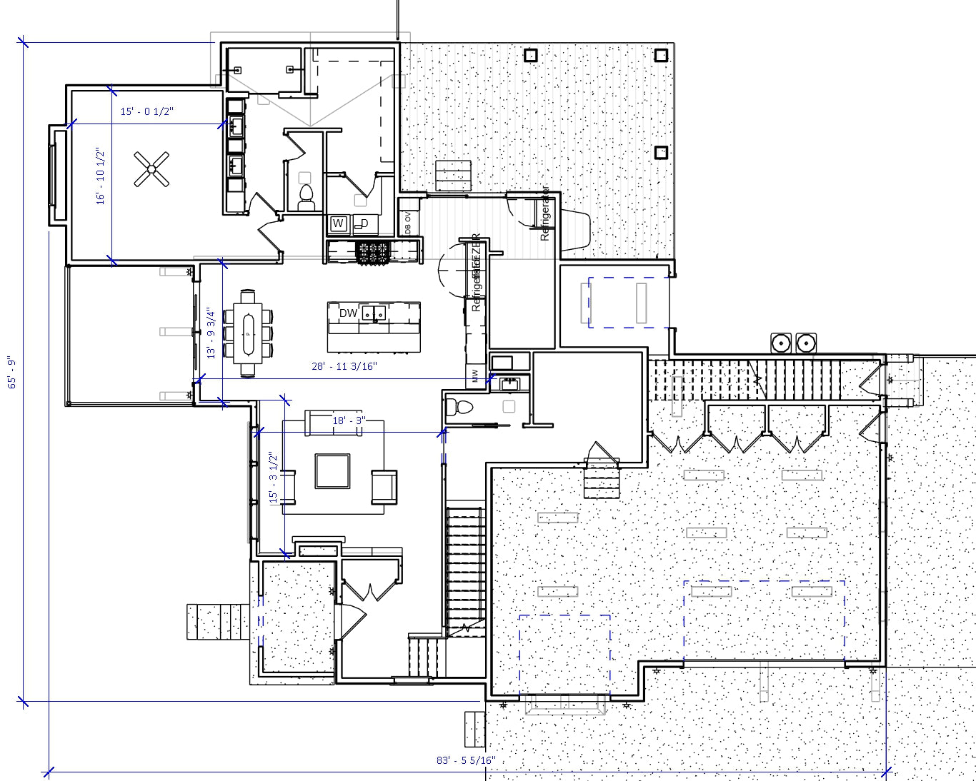
French stock house plan
SQ FT: 5268, 1106 garage w/1132 optional suspended slab, 1079 ADU
WIDTH: 65'9"
DEPTH: 83'
BEDROOMS: 7
BEATHROOMS: 6
FEATURES:
- French house plan with fireplace and vaulted entry
- Striking kitchen with large island and walk in pantry
- Coffered ceiling in owner's suite
- Main floor owner's suite
- Theater and large family room in basement
- Exercise room
- Two bedroom, two bath ADU
I am the sole designer/drafter of my Utah based company Authentic Homes which guarantees you personalized attention if you have questions or need modifications to this French stock house plan. Purchased plans are sent as a PDF file by email.
Please email me at AuthenticPlans@gmail.com for a Stock Plan Contract before purchasing, thank you.
|
PLANS INCLUDE:
|
PLANS DO NOT INCLUDE:
|
See demo set of house plans, plans are not returnable for a refund once the PDF of plans has been emailed as the product has been delivered. However, Authentic Homes will make every effort to resolve concerns. ALL PLANS ARE PROTECTED BY COPYRIGHT LAWS.
Regular price
$4,292.50 USD
Regular price
Sale price
$4,292.50 USD
Unit price
per
Shipping calculated at checkout.
Couldn't load pickup availability
