Authentic Homes
Irish Vernacular No.1
Irish Vernacular No.1
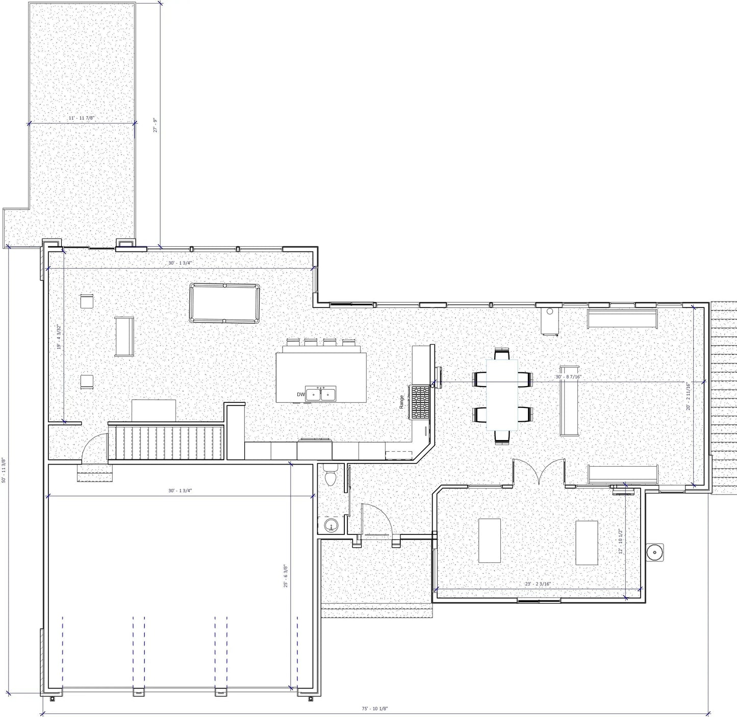
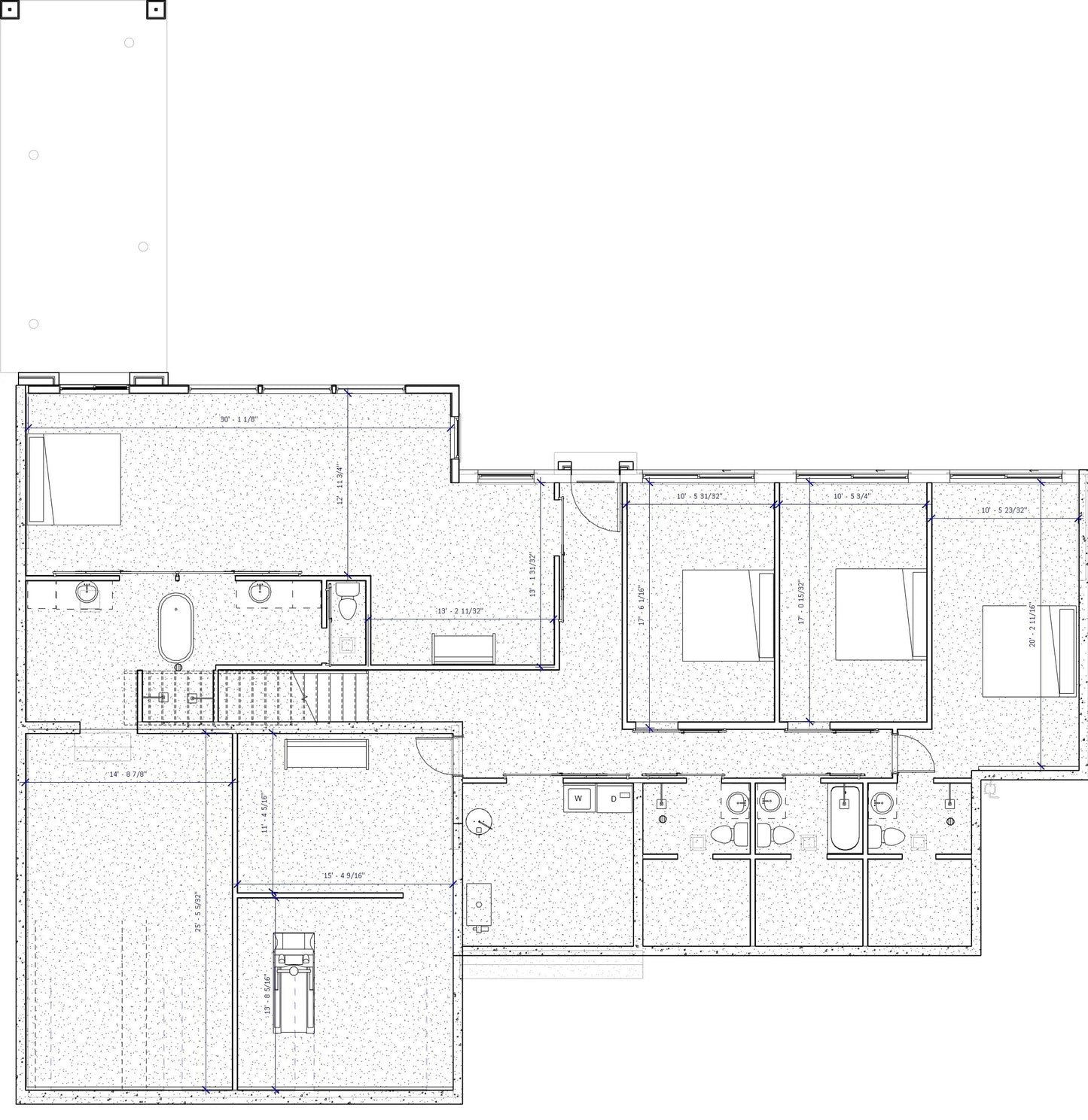
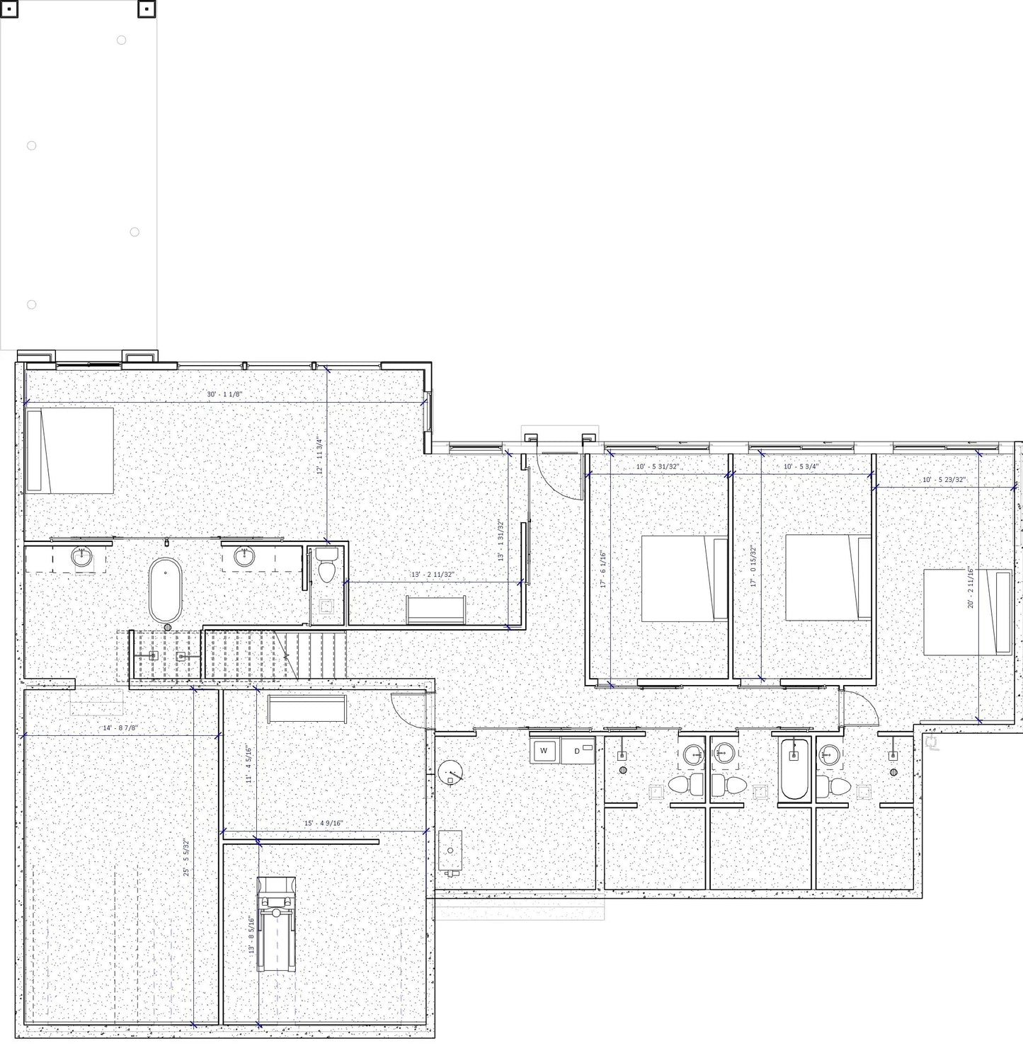
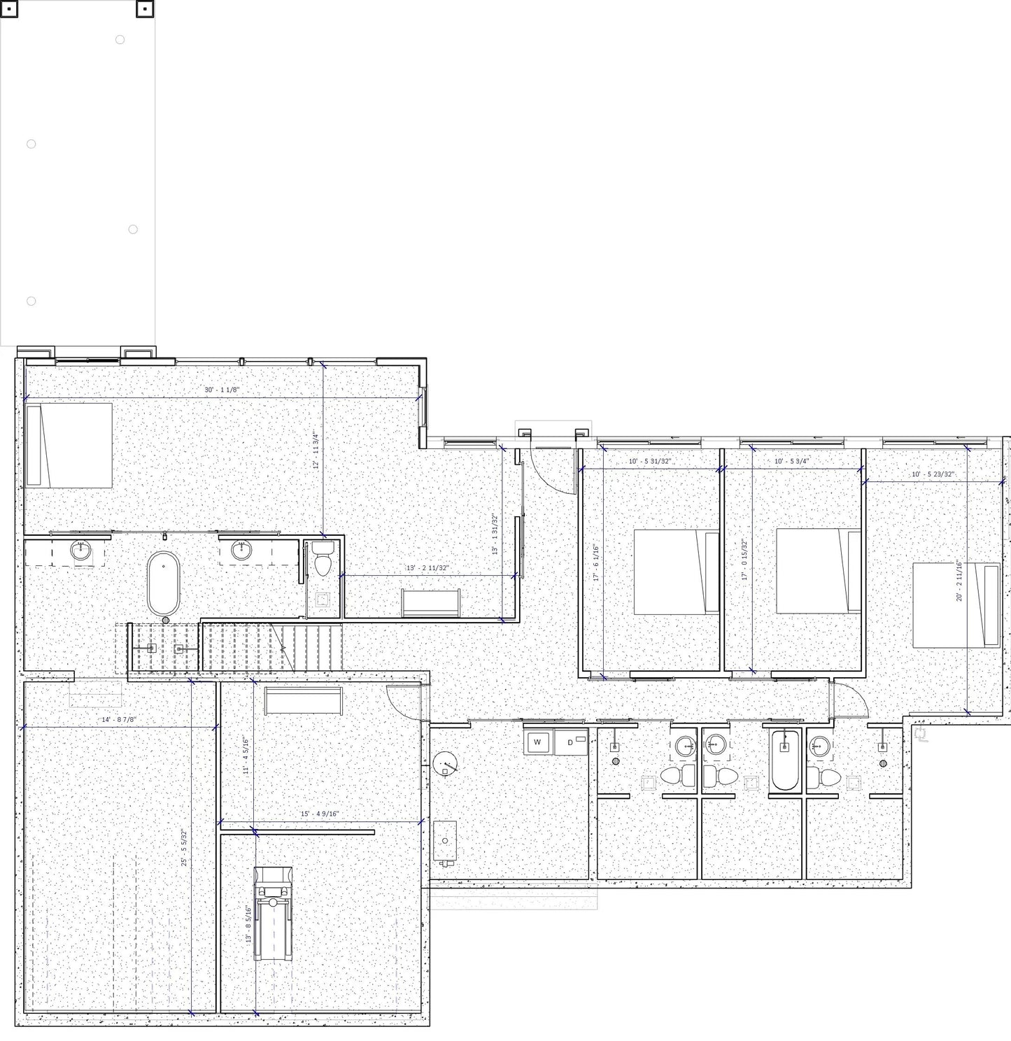
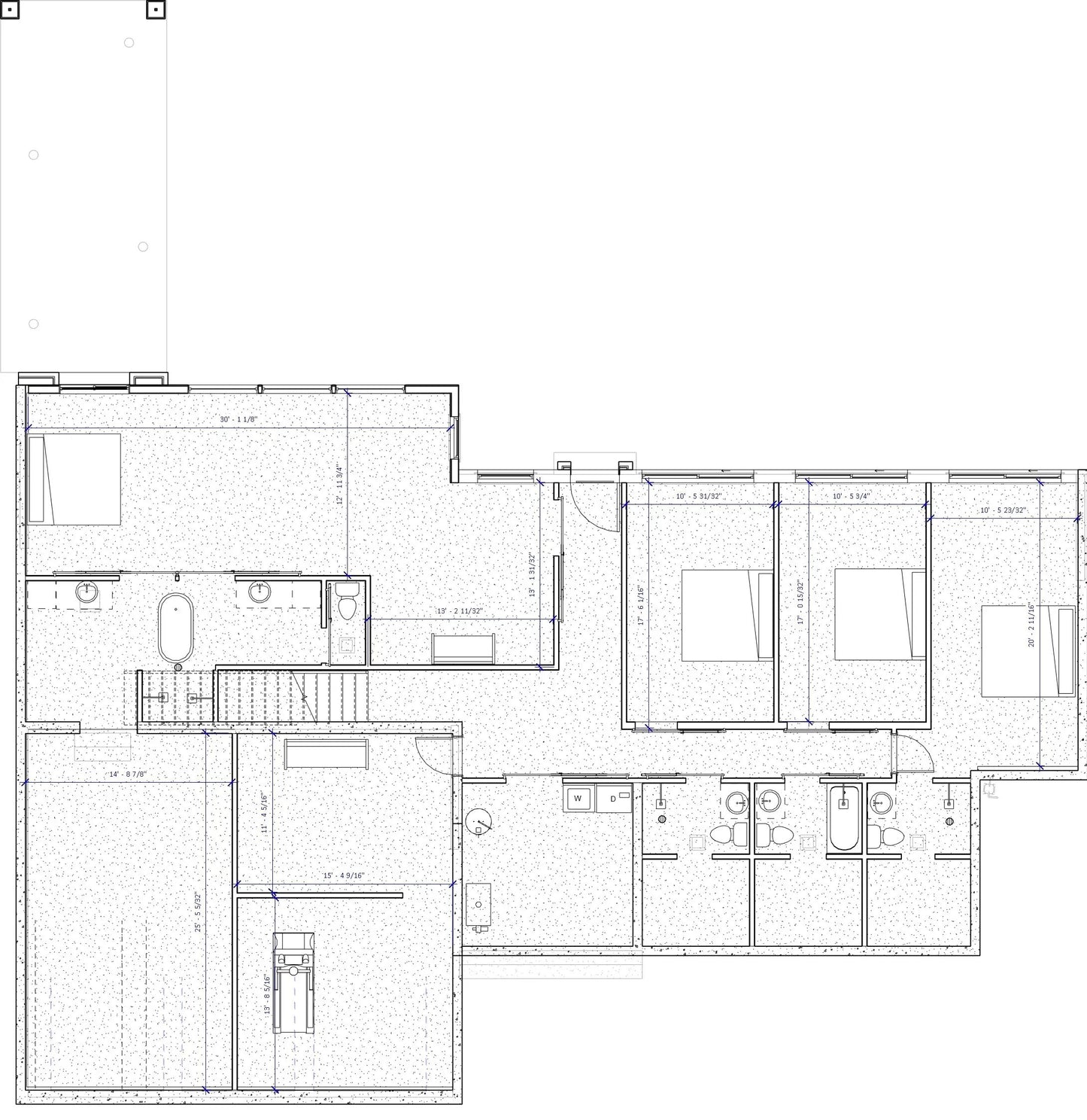
Irish Vernacular House Plan
SQ FT:5178 (4362 w/o rooms under garage) 816 garage
WIDTH: 76
DEPTH: 51
BEDROOMS: 4
BATHROOMS: 4.5
FEATURES:
- Designed for a sloped view lot
- Main floor entertaining space
- Vaulted main ceilings
- Spacious office with two story vault
- Large great room with two story vault and large windows
- Long "pier" deck
- Wood burning stove
- Bedrooms have dedicated bathrooms and walk in closets
- Spacious owner's suite w/dressing room
- Two bonus rooms
General Contractor: Greg Pilling, Authentic Homes
Irish Vernacular House Plan

I am the sole designer/drafter of my company Authentic Homes which guarantees you personalized attention if you have questions or need modifications for this Irish Vernacular House Plan. Purchased plans are sent as a PDF file by email.
Please email me at AuthenticPlans@gmail.com for a Stock Plan Contract before purchasing, thank you.
PLANS INCLUDE:
|
PLANS DO NOT INCLUDE:
|
See demo set of house plans, plans are not returnable for a refund once the PDF of plans has been emailed as the product has been delivered. However, Authentic Homes will make every effort to resolve concerns. ALL PLANS ARE PROTECTED BY COPYRIGHT LAWS.
Regular price
$2,997.00 USD
Regular price
Sale price
$2,997.00 USD
Unit price
per
Couldn't load pickup availability





















