Authentic Homes
No.8 Mountain house plan Vaulted Dining
No.8 Mountain house plan Vaulted Dining
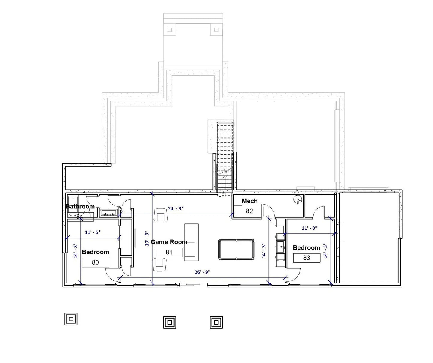
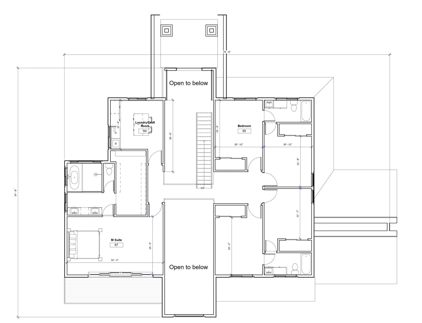
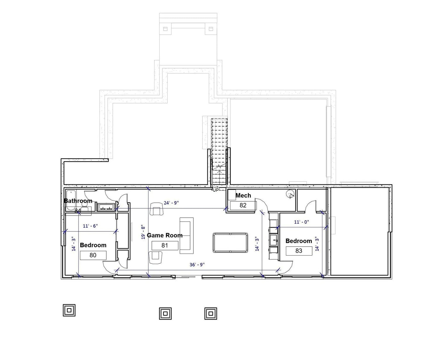
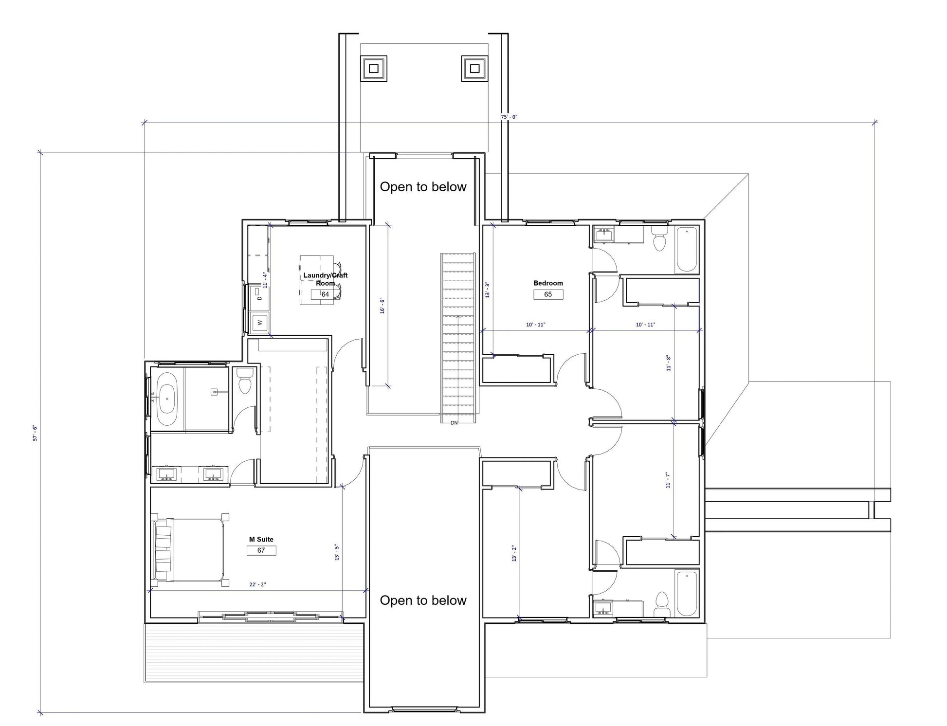
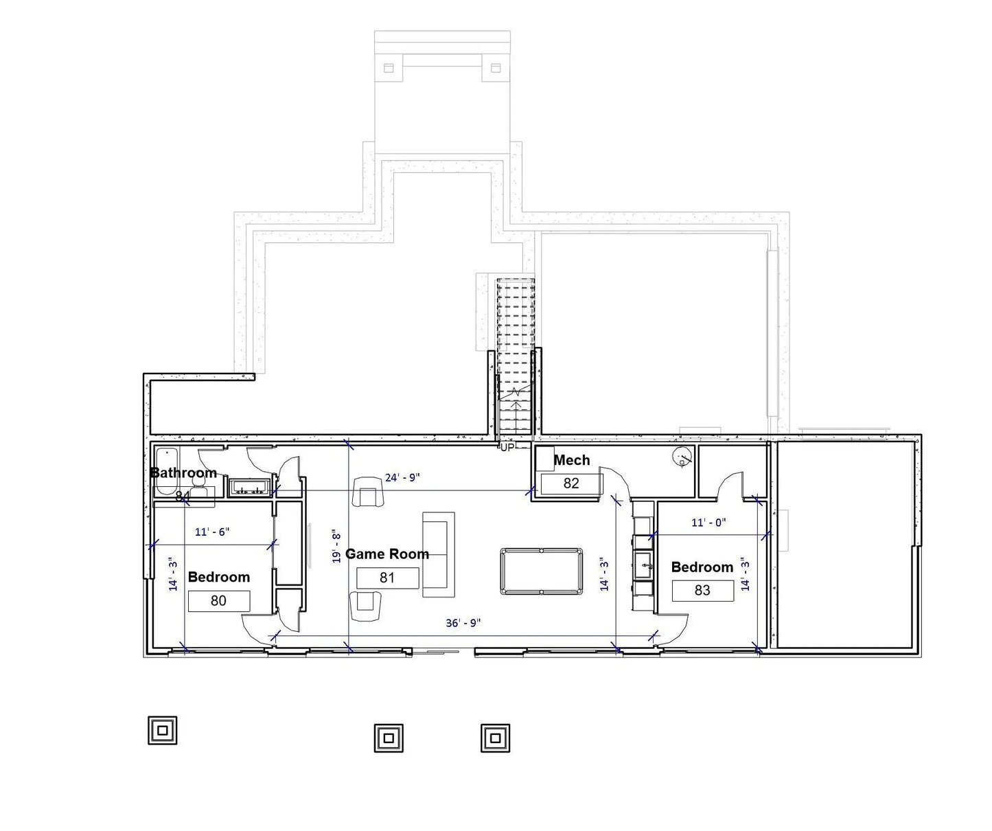
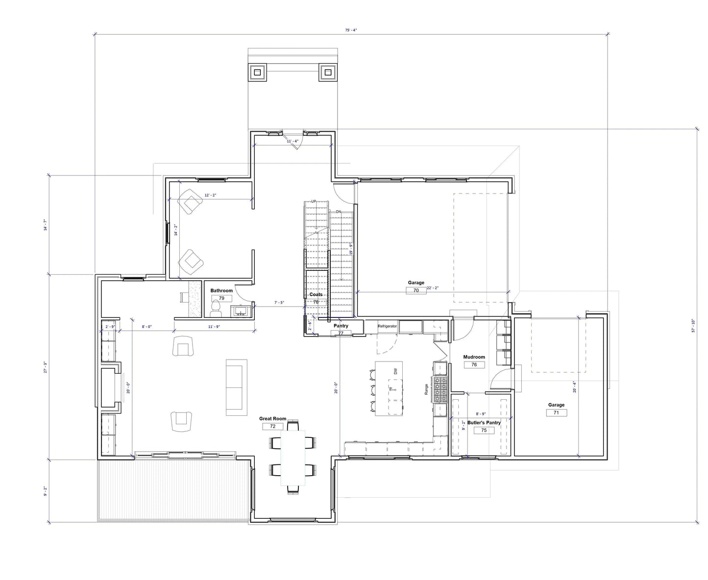
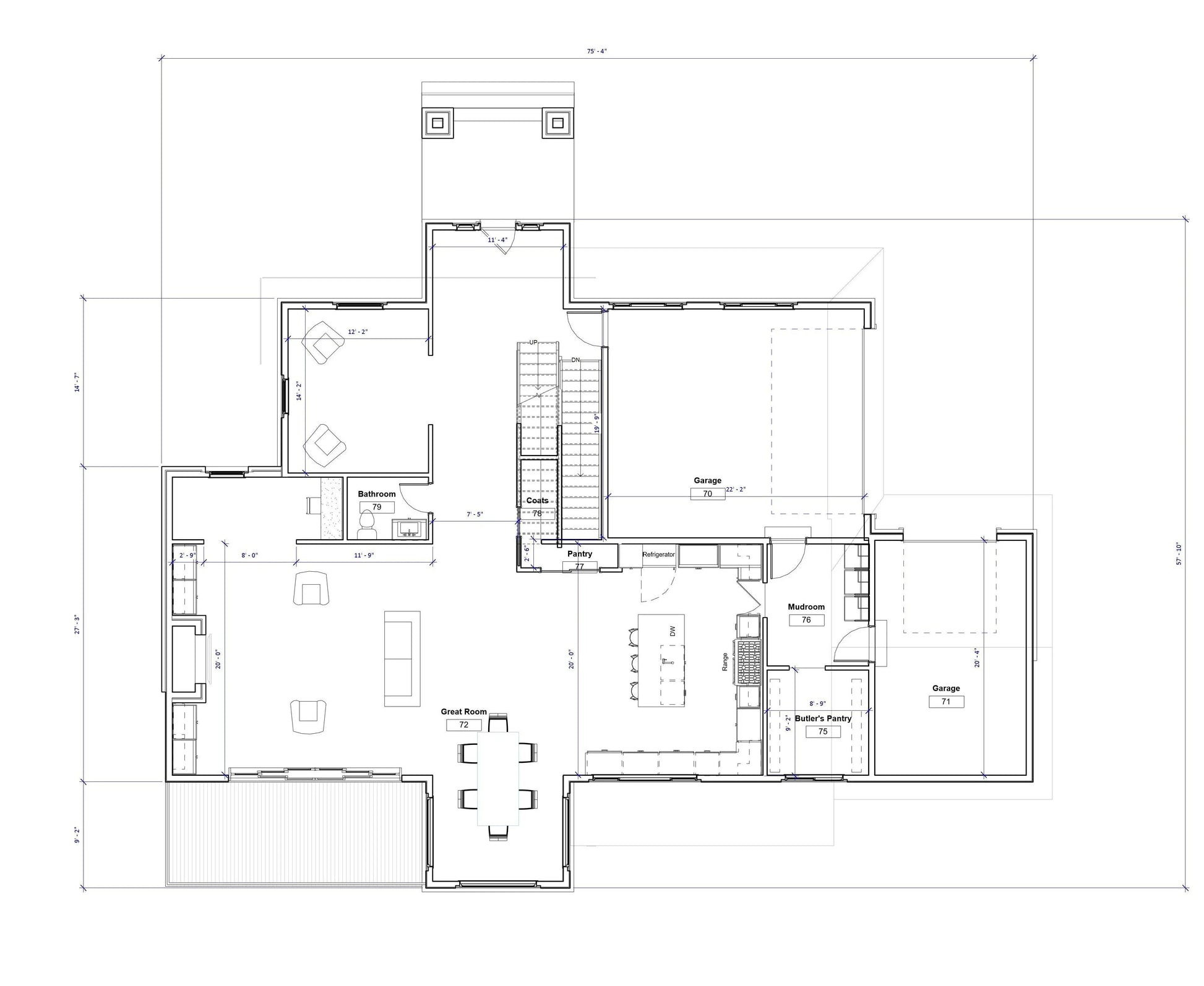
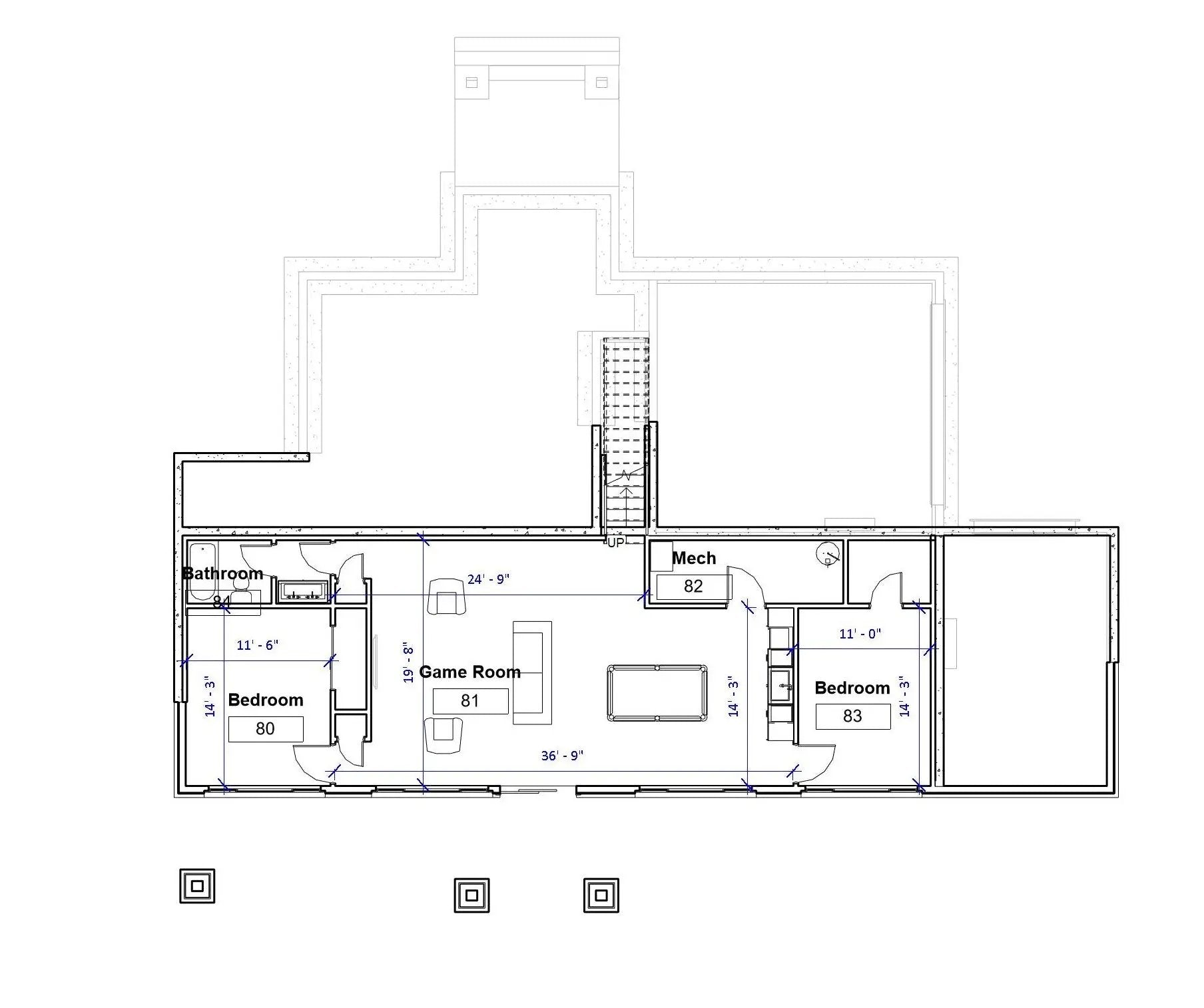
Mountain house plan
SQ FT: 5239, 785 garage
WIDTH: 75
DEPTH: 57
BEDROOMS: 7
BATHROOMS: 4.5
FEATURES:
- Vaulted two story dining room adds drama in this Mountain house plan
- Large kitchen with pantry and butler's pantry
- Formal living room
- Spacious living room w/fireplace and built in shelving
- Double stairs and catwalk
- Office/study area
- Large private master suite
- Laundry/craft room
- Large family room
I am the sole designer/drafter of my Utah company Authentic Homes which guarantees you personalized attention if you have questions or need modifications to this Mountain house plan. Purchased plans are sent as a PDF file by email.
Please email me at AuthenticPlans@gmail.com for a Stock Plan Contract before purchasing, thank you.
|
PLANS INCLUDE:
|
PLANS DO NOT INCLUDE:
|
See demo set of house plans, plans are not returnable for a refund once the PDF of plans has been emailed as the product has been delivered. However, Authentic Homes will make every effort to resolve concerns. ALL PLANS ARE PROTECTED BY COPYRIGHT LAWS.
Regular price
$3,012.00 USD
Regular price
Sale price
$3,012.00 USD
Unit price
per
Shipping calculated at checkout.
Couldn't load pickup availability
