Authentic Homes
No.1 Prairie house plan Staircase Feature
No.1 Prairie house plan Staircase Feature
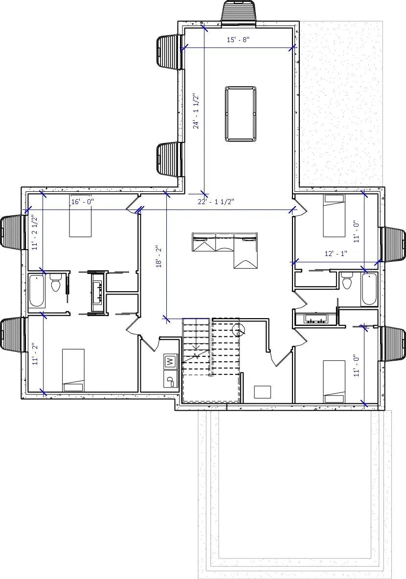
Prairie house plan
SQ FT: 4769, 576 garage
WIDTH: 53
DEPTH: 80
BEDROOMS: 8
BATHROOMS: 4.5
FEATURES:
- Prairie house plan with staircase feature
- Office
- Spacious kitchen w/hidden doors to mudroom and walk in pantry
- Large living room w/two story vault
- Main floor light filled owner's suite
- Separate dining area with patio
- Large family room
- Shared bathrooms have separate tub area

I am the sole designer/drafter of my Utah company Authentic Homes which guarantees you personalized attention if you have questions or need modifications for this Prairie house plan. Purchased plans are sent as a PDF file by email.
Please email me at AuthenticPlans@gmail.com for a Stock Plan Contract before purchasing, thank you.
|
PLANS INCLUDE:
|
PLANS DO NOT INCLUDE:
|
See demo set of house plans, plans are not returnable for a refund once the PDF of plans has been emailed as the product has been delivered. However, Authentic Homes will make every effort to resolve concerns. ALL PLANS ARE PROTECTED BY COPYRIGHT LAWS.
Regular price
$2,673.00 USD
Regular price
Sale price
$2,673.00 USD
Unit price
per
Shipping calculated at checkout.
Couldn't load pickup availability
