Authentic Homes
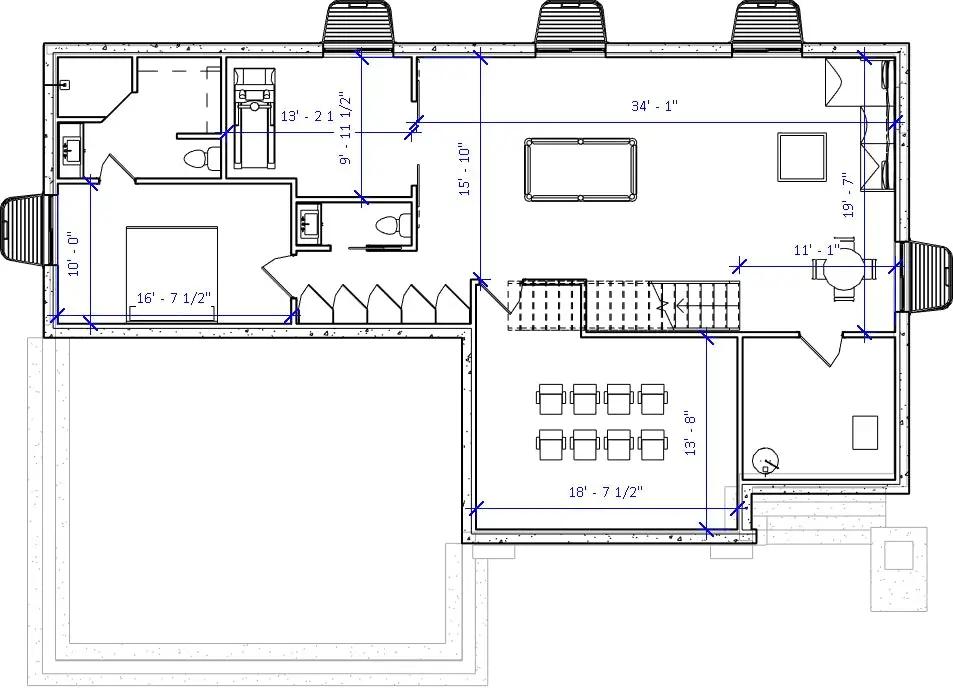
No.2 Prairie house plan Large Kitchen
No.2 Prairie house plan Large Kitchen
Prairie house plan
SQ FT: 4426, 713 garage
WIDTH: 61
DEPTH: 45
BEDROOMS: 5
BATHROOMS: 4
FEATURES:
- Staircase feature
- Two story vaulted living room showcases this Prairie house plan
- Two story partial vault in dining room
- Large kitchen with butler's pantry
- Main floor owner's suite
- Second bedroom suite in basement
- Loft
- Walk in closets
- Exercise room
- Large theater

I am the sole designer/drafter of my Utah company Authentic Homes which guarantees you personalized attention if you have questions or need modifications for this Prairie house plan. Purchased plans are sent as a PDF file by email.
Please email me at AuthenticPlans@gmail.com for a Stock Plan Contract before purchasing, thank you.
|
PLANS INCLUDE:
|
PLANS DO NOT INCLUDE:
|
See demo set of house plans, plans are not returnable for a refund once the PDF of plans has been emailed as the product has been delivered. However, Authentic Homes will make every effort to resolve concerns. ALL PLANS ARE PROTECTED BY COPYRIGHT LAWS.
Regular price
$2,570.00 USD
Regular price
Sale price
$2,570.00 USD
Unit price
per
Shipping calculated at checkout.
Couldn't load pickup availability
